川崎市高津区東野川2丁目
東急田園都市線 鷺沼駅 バス25分 山崎 停歩3分
4LDK
建物面積:93.56㎡
土地面積:99.25㎡
2026年03月築(予定)
4,380万円



| 物件種別 | 新築戸建 |
| 所在地 | GoogleMaps |
| 交通 | 南武線 武蔵新城駅 バス13分 蟹ケ谷 停歩3分 |
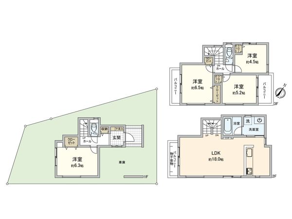
| 間取り | 4LDK |
| 建物面積 | 107.53㎡(約32.52坪) |
| 土地面積 | 83.93㎡(約25.38坪) |
| 築年月 | 2026年03月築(予定) |
返済計画を入力すると毎月のお支払い目安を表示できます
-物件のおすすめポイント- ▼立地 ・JR南武線「武蔵新城」駅からバス13分「蟹ケ谷」バス停より徒歩3分 ▼建物の特徴 ・令和8年3月完成予定 ・土地面積83.93平米(約25.38坪) ・建物面積107.53平米(約32.52坪) ・2台分駐車スペース有(車種による) ・全居室収納のある4LDK ▼お部屋の特徴 ・約18.0帖の広々としたLDK ・全室2面採光につき明るく開放感がございます ・ご家族との会話の弾む対面式カウンターキッチン ・3階部分は両面バルコニーにつき通風良好です ■ ご希望の住まい探しをお手伝いします ━━━━━ ・・・ 物件の詳細・ご相談はお気軽にお問い合わせください。
| 所在地 | GoogleMaps |
| 価格 | 4,380万円 |
| 交通 | 南武線 武蔵新城駅 バス13分 蟹ケ谷 停歩3分 |
| その他費用 | - |
| 間取り | 4LDK |
| 建物面積 | 107.53㎡(約32.52坪) |
| 土地面積 | 83.93㎡(約25.38坪) |
| 築年月 | 2026年03月築(予定) |
| 建物構造 | 木造3階建 |
| 現況 | 未完成 |
| 駐車場 | 有 |
| 土地権利 | 所有権 |
| 地目 | 宅地 |
| 接道状況 | 北東側: 約 6m (公道) |
| 建ぺい率 | 60% |
| 容積率 | 200% |
| 用途地域 | 第一種住居地域 |
| 都市計画 | 市街化区域 |
| 建築確認番号 | 第25KAK建確02304号 |
| 備考 | ※建物面積に車庫面積11.80平米を含みます 上記建物面積のうち1F車庫面積11.80㎡含む |
| 引渡時期 | 相談 |
| 取引態様 | 仲介 |
| 更新日 | 2025年11月28日 |
| 次回更新予定 | 2025年12月12日 |
| 物件番号 | F86AUA09 |
最新のAI技術を活用した相談サービスです。
お客様一人ひとりのニーズに合わせて最適な情報をご提供します。
リハウスAIチャットの詳しい説明はこちら
GoogleMaps
| スーパー | まいばすけっと川崎蟹ヶ谷店 約270m(徒歩4分) |
| その他利便施設1 | ファミリーマート川崎蟹ヶ谷店 約260m(徒歩4分) |
| その他利便施設2 | セブンイレブン川崎蟹ヶ谷店 約530m(徒歩7分) |
0120-924-131
0120-924-131
物件の売却をご検討の方は、 はやめの査定依頼がおすすめです!
買い替えをご検討の方はこちら0120-924-131

