横浜市青葉区藤が丘2丁目
東急田園都市線 藤が丘駅 徒歩9分
3SLDK
建物面積:128.42㎡
土地面積:138.67㎡
新築
7,980 万円



| 物件種別 | 新築戸建 |
| 所在地 | GoogleMaps |
| 交通 | |
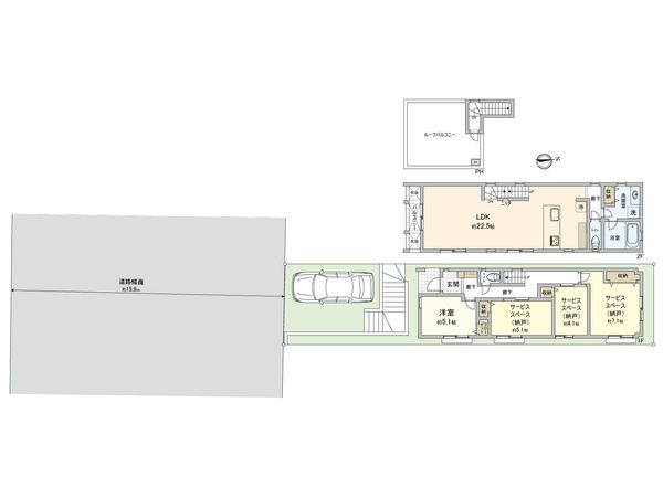
| 間取り | 1LDK+3S ※S・サービススペースは納戸です |
| 建物面積 | 104.63㎡(約31.65坪) |
| 土地面積 | 107.79㎡(約32.6坪) |
| 築年月 | 2025年09月築 |
返済計画を入力すると毎月のお支払い目安を表示できます
-物件のおすすめポイント- ▼立地 ・東急田園都市線『藤が丘』駅 徒歩9分 ・東急田園都市線『青葉台』駅 徒歩11分 ▼建物の特徴 ・令和7年9月完成の新築戸建 ・土地面積107.79平米、建物面積104.63平米の1LDK+3S ・平置きの駐車スペース1台分(車種による制限あり) ▼お部屋の特徴 ・南西向きバルコニーに面した2階リビング ・居室としても使用可能な納戸3か所 ・多目的に使える屋上ルーフバルコニー ▼設備 ・食洗機、浄水器付きのシステムキッチン ・足元を暖めるガス温水式床暖房(リビング) ・雨の日も洗濯が可能になる浴室換気暖房乾燥機 ・スムーズに解錠できるリモコンキー採用 ▼周辺環境 ・セブンイレブン横浜梅が丘店まで徒歩2分(約100m) ・横浜市立藤が丘小学校まで徒歩3分(約210m) ■ ご希望の住まい探しをお手伝いします ━━━━━・・・ 物件の詳細・ご相談はお気軽にお問い合わせください。
| 所在地 | GoogleMaps |
| 価格 | 7,980万円 |
| 交通 | |
| その他費用 | - |
| 間取り | 1LDK+3S ※S・サービススペースは納戸です |
| 建物面積 | 104.63㎡(約31.65坪) |
| 土地面積 | 107.79㎡(約32.6坪) |
| 築年月 | 2025年09月築 |
| 建物構造 | 木造2階建 |
| 現況 | 空家 |
| 駐車場 | 有 |
| 土地権利 | 所有権 |
| 地目 | 宅地 |
| 接道状況 | - |
| 建ぺい率 | 60% |
| 容積率 | 150% |
| 用途地域 | 第二種中高層住居専用地域 |
| 都市計画 | 市街化区域 |
| 備考 | ※建物面積に塔屋部分約3.24平米を含む。 |
| 引渡時期 | 相談 |
| 取引態様 | 仲介 |
| 更新日 | 2025年10月17日 |
| 次回更新予定 | 2025年10月31日 |
| 物件番号 | F88AGA96 |
GoogleMaps
| スーパー | まいばすけっと梅が丘店 約270m(徒歩4分) |
| スーパー | 東急ストア藤が丘店 約700m(徒歩9分) |
| 公園 | 梅が丘公園 約260m(徒歩4分) |
| 病院 | 菊池医院 約280m(徒歩4分) |
| 小学校 | 横浜市立藤が丘小学校 約210m(徒歩3分) |
| 中学校 | 横浜市立谷本中学校 約340m(徒歩5分) |
| その他利便施設1 | セブンイレブン横浜梅が丘店 約100m(徒歩2分) |
| その他利便施設2 | クリエイトSD青葉藤が丘店 約280m(徒歩4分) |
| その他利便施設3 | 横浜藤が丘郵便局 約270m(徒歩4分) |
| その他利便施設4 | 青葉台東急スクエア 約820m(徒歩11分) |
三井不動産リアルティ株式会社
国土交通大臣(15)第777号
0120-313-740
0120-313-740
物件の売却をご検討の方は、 はやめの査定依頼がおすすめです!
買い替えをご検討の方はこちら0120-313-740
