横浜市青葉区みたけ台
東急田園都市線 青葉台駅 バス12分 みたけ台小学校第一 停歩1分
3LDK
建物面積:103.92㎡
土地面積:137.72㎡
2026年02月築(予定)
5,680万円



| 物件種別 | 新築戸建 |
| 所在地 | GoogleMaps |
| 交通 | |
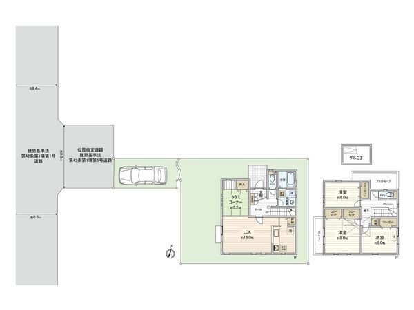
| 間取り | 3LDK |
| 建物面積 | 104.33㎡(約31.55坪) |
| 土地面積 | 139.29㎡(約42.13坪) ※別途私道約27㎡有 (共有持分 1/2) |
| 築年月 | 2026年02月築(予定) |
返済計画を入力すると毎月のお支払い目安を表示できます
-物件のおすすめポイント- ▼立地 ・東急田園都市線『青葉台』駅よりバス12分 「みたけ台小学校第一」停歩1分 ・東急田園都市線『藤が丘』駅よりバス16分 「みたけ台小学校第一」停歩1分 ▼建物の特徴 ・令和8年2月下旬完成予定の新築戸建 ・駐車スペース1台分(車種による制限あり) ・低層地域の閑静な住宅街に立地 ▼お部屋の特徴 ・全居室6帖以上のゆとりある間取 ・リビングとの一体利用が可能なタタミコーナー付き ▼設備 ・天然芝のお庭約20平米 ・季節家電等の収納に便利なグルニエを設置 ▼周辺環境 ・横浜市立みたけ台小学校まで徒歩1分(約60m) ・東急ストアたちばな台店まで徒歩7分(約560m) ■ ご希望の住まい探しをお手伝いします ━━━━━・・・ 物件の詳細・ご相談はお気軽にお問い合わせください。
| 所在地 | GoogleMaps |
| 価格 | 5,680万円 |
| 交通 | |
| その他費用 | - |
| 間取り | 3LDK |
| 建物面積 | 104.33㎡(約31.55坪) |
| 土地面積 | 139.29㎡(約42.13坪) ※別途私道約27㎡有 (共有持分 1/2) |
| 築年月 | 2026年02月築(予定) |
| 建物構造 | 木造2階建 |
| 現況 | 未完成 |
| 駐車場 | 有 |
| 土地権利 | 所有権 |
| 地目 | 宅地 |
| 接道状況 | 西側: 約 5.5m (私道) |
| 建ぺい率 | 40% |
| 容積率 | 80% |
| 用途地域 | 第一種低層住居専用地域 |
| 都市計画 | 市街化区域 |
| 建築確認番号 | 第KBI-YKH25-10-1778号 |
| 備考 | - |
| 引渡時期 | 相談 |
| 取引態様 | 仲介 |
| 更新日 | 2026年02月09日 |
| 次回更新予定 | 2026年02月23日 |
| 物件番号 | F88AGAA8 |
最新のAI技術を活用した相談サービスです。
お客様一人ひとりのニーズに合わせて最適な情報をご提供します。
リハウスAIチャットの詳しい説明はこちら
GoogleMaps
| スーパー | 東急ストアたちばな台店 約560m(徒歩7分) |
| 公園 | たちばな台公園 約320m(徒歩4分) |
| 病院 | ふじた内科こども医院 約320m(徒歩4分) |
| 小学校 | 横浜市立みたけ台小学校 約60m(徒歩1分) |
| 中学校 | 横浜市立みたけ台中学校 約360m(徒歩5分) |
| その他利便施設1 | ローソン・スリーエフ青葉みたけ台店 約260m(徒歩4分) |
| その他利便施設2 | サンドラッグたちばな台店 約430m(徒歩6分) |
| その他利便施設3 | 業務スーパー青葉台店 約920m(徒歩12分) |
三井不動産リアルティ株式会社
国土交通大臣(15)第777号
0120-313-740
0120-313-740
物件の売却をご検討の方は、 はやめの査定依頼がおすすめです!
買い替えをご検討の方はこちら0120-313-740

