横浜市緑区北八朔町
横浜市グリーンライン 中山駅 徒歩12分
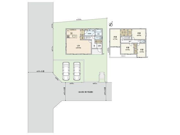
4LDK
建物面積:105.16㎡
土地面積:158.06㎡
2025年12月築(予定)
6,890万円



| 物件種別 | 新築戸建 |
| 所在地 | GoogleMaps |
| 交通 | |
| 間取り | 4LDK |
| 建物面積 | 109.9㎡(約33.24坪) |
| 土地面積 | 203.54㎡(約61.57坪) |
| 築年月 | 2025年10月築 |
予約制内覧会を開催します!
| 開催日 | 11月15日(土)11:00 ~ 17:00 11月16日(日)11:00 ~ 17:00 11月22日(土)11:00 ~ 17:00 11月23日(日)11:00 ~ 17:00 11月24日(月)11:00 ~ 17:00 |
|---|
返済計画を入力すると毎月のお支払い目安を表示できます
-物件のおすすめポイント- ▼立地 ・横浜市営地下鉄グリーンライン『中山』駅 バス10分 「山谷みどり台」停歩5分 ・JR横浜線『中山』駅 バス10分 「山谷みどり台」停歩6分 ▼建物の特徴 ・令和7年10月完成の新築戸建 ・開放感のある南西角地に立地 ・駐車スペース並列2台分(車種による制限あり) ▼お部屋の特徴 ・約20.0帖の広々としたLDK ・日当たりの良い南東向きバルコニー ・洗面室は動線の良い2WAYタイプ ▼設備 ・家事の負担を減らす食洗機、浴室暖房乾燥機 ・全室収納スペースあり ・来客時に便利なモニター付きインターホン ▼周辺環境 ・北八朔第二公園まで徒歩4分(約260m) ・横浜市立山下みどり台小学校まで徒歩6分(約420m) ■ ご希望の住まい探しをお手伝いします ━━━━━・・・ 物件の詳細・ご相談はお気軽にお問い合わせください。
| 所在地 | GoogleMaps |
| 価格 | 6,890万円 |
| 交通 | |
| その他費用 | - |
| 間取り | 4LDK |
| 建物面積 | 109.9㎡(約33.24坪) |
| 土地面積 | 203.54㎡(約61.57坪) |
| 築年月 | 2025年10月築 |
| 建物構造 | 木造2階建 |
| 現況 | 空家 |
| 駐車場 | 有 |
| 土地権利 | 所有権 |
| 地目 | 宅地 |
| 接道状況 | 南西側: 約 8m (公道)、南東側: 約 4.5m (公道) |
| 建ぺい率 | 40% |
| 容積率 | 80% |
| 用途地域 | 第一種低層住居専用地域 |
| 都市計画 | 市街化区域 |
| 備考 | - |
| 引渡時期 | 相談 |
| 取引態様 | 仲介 |
| 更新日 | 2025年11月14日 |
| 次回更新予定 | 2025年11月28日 |
| 物件番号 | F88AGABA |
最新のAI技術を活用した相談サービスです。
お客様一人ひとりのニーズに合わせて最適な情報をご提供します。
GoogleMaps
| スーパー | ベルクフォルテ横浜川和町店 約1770m(徒歩23分) |
| 公園 | 北八朔第二公園 約260m(徒歩4分) |
| 病院 | さいとうクリニック 約400m(徒歩5分) |
| 小学校 | 横浜市立山下みどり台小学校 約420m(徒歩6分) |
| 中学校 | 横浜市立緑が丘中学校 約1370m(徒歩18分) |
| その他利便施設1 | ローソン・スリーエフ緑区北八朔町店 約500m(徒歩7分) |
| その他利便施設2 | クリエイトSD緑西八朔店 約840m(徒歩11分) |
| その他利便施設3 | 八朔幼稚園 約230m(徒歩3分) |
三井不動産リアルティ株式会社
国土交通大臣(15)第777号
0120-313-740
0120-313-740
物件の売却をご検討の方は、 はやめの査定依頼がおすすめです!
買い替えをご検討の方はこちら0120-313-740
