横浜市青葉区鴨志田町
東急田園都市線 青葉台駅 バス16分 鴨志田町 停歩4分
4LDK
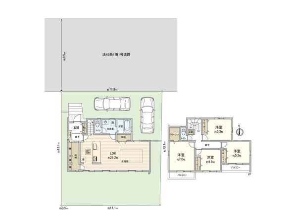
建物面積:114.89㎡
土地面積:192.89㎡
2026年05月築(予定)
10,780万円



| 物件種別 | 新築戸建 |
| 所在地 | GoogleMaps |
| 交通 | 東急田園都市線 藤が丘駅 徒歩5分 |
| 間取り | 4LDK |
| 建物面積 | 111.99㎡(約33.87坪) |
| 土地面積 | 155.12㎡(約46.92坪) |
| 築年月 | 2026年05月築(予定) |
-物件のおすすめポイント- ▼立地 ・東急田園都市線『藤が丘』駅 徒歩5分 ▼建物の特徴 ・令和8年5月下旬完成予定の新築戸建 ・土地面積155.12平米 ・建物面積111.99平米の4LDK ・駐車スペース2台分(車種による制限あり) ・低層地域の閑静な住宅街に立地 ▼お部屋の特徴 ・3面採光、20帖超えの広々としたLDK ・日当たりの良い南向きのバルコニー ・コミュニケーションを育むリビング階段を採用 ▼設備 ・キッチン裏に大容量の収納スペースを設置 ・食洗機、浄水器付きのオープンキッチン ・来客時に便利なモニター付きインターホン ▼周辺環境 ・千草台公園まで徒歩4分(約310m) ・谷本小学校まで徒歩5分(約330m) ・東急ストア藤が丘店まで徒歩5分(約340m) ■ ご希望の住まい探しをお手伝いします ━━━━━・・・ 物件の詳細・ご相談はお気軽にお問い合わせください。
| 所在地 | GoogleMaps |
| 価格 | 10,780万円 |
| 交通 | 東急田園都市線 藤が丘駅 徒歩5分 |
| その他費用 | - |
| 間取り | 4LDK |
| 建物面積 | 111.99㎡(約33.87坪) |
| 土地面積 | 155.12㎡(約46.92坪) |
| 築年月 | 2026年05月築(予定) |
| 建物構造 | 木造2階建 |
| 現況 | 未完成 |
| 駐車場 | 有 |
| 土地権利 | 所有権 |
| 地目 | 宅地 |
| 接道状況 | 北側: 約 8.5m (公道) |
| 建ぺい率 | 50% |
| 容積率 | 80% |
| 用途地域 | 第一種低層住居専用地域 |
| 都市計画 | 市街化区域 |
| 建築確認番号 | 第R07SHC119869号 |
| 備考 | - |
| 引渡時期 | 2026年06月上旬以降 |
| 取引態様 | 仲介 |
| 更新日 | 2026年04月16日 |
| 次回更新予定 | 2026年04月30日 |
| 物件番号 | F88BGA3C |
最新のAI技術を活用した相談サービスです。
お客様一人ひとりのニーズに合わせて最適な情報をご提供します。
リハウスAIチャットの詳しい説明はこちら
GoogleMaps
| スーパー | 東急ストア藤が丘店 約340m(徒歩5分) |
| 公園 | 千草台公園 約310m(徒歩4分) |
| 病院 | 荻原医院 約70m(徒歩1分) |
| 病院 | 昭和大学藤が丘病院 約610m(徒歩8分) |
| 小学校 | 横浜市立谷本小学校 約330m(徒歩5分) |
| 中学校 | 横浜市立緑が丘中学校 約1120m(徒歩14分) |
| その他利便施設1 | ファミリーマート藤が丘駅南口店 約350m(徒歩5分) |
| その他利便施設2 | ウエルシア藤が丘駅前店 約340m(徒歩5分) |
| その他利便施設3 | ダイソーT-BOX横浜藤が丘店 約510m(徒歩7分) |
| その他利便施設4 | 藤が丘駅(東急電鉄 田園都市線) 約370m(徒歩5分) |
三井不動産リアルティ株式会社
国土交通大臣(15)第777号
0120-313-740
0120-313-740
物件の売却をご検討の方は、 はやめの査定依頼がおすすめです!
買い替えをご検討の方はこちら0120-313-740

