藤沢市善行1丁目
小田急電鉄江ノ島線 善行駅 徒歩6分
3SLDK
建物面積:110.96㎡
土地面積:84.54㎡
新築
5,280万円



| 物件種別 | 新築戸建 |
| 所在地 | GoogleMaps |
| 交通 | 小田急電鉄江ノ島線 善行駅 徒歩6分 |
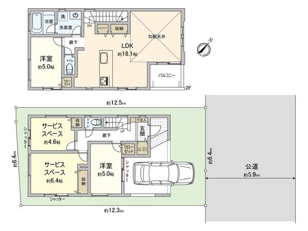
| 間取り | 2LDK+S×2 ※S・サービススペースは納戸です |
| 建物面積 | 107.64㎡(約32.56坪) |
| 土地面積 | 80.65㎡(約24.39坪) |
| 築年月 | 2025年12月築 |
返済計画を入力すると毎月のお支払い目安を表示できます
■ おすすめポイント ━━━━━━━━━━━━━━━・・・・・ ○ 小田急江ノ島線「善行」駅 徒歩6分(約420m) ○ 家族との会話が弾む対面式カウンターシステムキッチンのLDKは広々約18.1帖 ○ キッチン近くには食品や食器などを収納できるパントリー付 ○ 家事の時短にもなるビルトイン食器洗浄機付 ○ いつでもおいしい水を利用できる浄水器一体型シャワー水栓 ○ 冬の暖房機能はもちろん、雨の日の衣類乾燥に役立つ浴室乾燥機付き ○ 洗面台でのシャンプーや毎日の掃除に便利なハンドシャワー付洗面化粧台 ○ ガス衣類乾燥機を設置できるガス栓付き ○ 少ないガス量で効率よくお湯を沸かす省エネ性の高い給湯器、エコジョーズ採用 ○ 全居室収納スペース付きのため、住空間を有効にお使いいただけます ○ 来客時に便利で防犯にも役立つカラーモニター付きインターホン ○ 耐熱性・遮音性に優れたペアガラスを採用 ○ ビルトインカースペース1台分あり(車種による) ■ 担当者より ━━━━━━━━━━━━・・・・・ ぜひ現地にて周辺環境と合わせてご覧いただければと思います。 ご内覧希望、物件の詳細・ご質問はメールフォームまたはフリーコールにて 三井のリハウス藤沢センターまでお気軽にご連絡ください。 また、ご購入に際しての諸費用、住宅ローン(月々の返済例)等、 資金計画のご相談も承っております。 そのほか連携金融機関のご紹介から、ご成約後のサポート・特典など、 三井のリハウスならではのサービスもご用意しておりますので、 お気軽にお問い合わせください。
| 所在地 | GoogleMaps |
| 価格 | 5,280万円 |
| 交通 | 小田急電鉄江ノ島線 善行駅 徒歩6分 |
| その他費用 | - |
| 間取り | 2LDK+S×2 ※S・サービススペースは納戸です |
| 建物面積 | 107.64㎡(約32.56坪) |
| 土地面積 | 80.65㎡(約24.39坪) |
| 築年月 | 2025年12月築 |
| 建物構造 | 木造2階建 |
| 現況 | 空家 |
| 駐車場 | 有 |
| 土地権利 | 所有権 |
| 地目 | 宅地 |
| 接道状況 | 北東側: 約 5.9m (公道) |
| 建ぺい率 | 60% |
| 容積率 | 200% |
| 用途地域 | 第二種中高層住居専用地域 |
| 都市計画 | 市街化区域 |
| 備考 | 準防火地域/宅地造成工事規制区域 ※建物面積に車庫面積11.17平米を含みます。 |
| 引渡時期 | 2026年01月下旬以降 |
| 取引態様 | 仲介 |
| 更新日 | 2026年01月19日 |
| 次回更新予定 | 2026年02月02日 |
| 物件番号 | F90AGB35 |
最新のAI技術を活用した相談サービスです。
お客様一人ひとりのニーズに合わせて最適な情報をご提供します。
リハウスAIチャットの詳しい説明はこちら
GoogleMaps
| スーパー | FUJI 善行店 約340m(徒歩5分) |
| 公園 | 茅山公園 約300m(徒歩4分) |
| 公園 | 椎名谷公園 約430m(徒歩6分) |
| 病院 | えりクリニック 約90m(徒歩2分) |
| 小学校 | 藤沢市立大越小学校 約540m(徒歩7分) |
| 中学校 | 藤沢市立善行中学校 約1260m(徒歩16分) |
| その他利便施設1 | セブン-イレブン 藤沢善行2丁目店 約240m(徒歩3分) |
| その他利便施設2 | クリエイトS・D 藤沢善行店 約250m(徒歩4分) |
| その他利便施設3 | 藤沢善行郵便局 約350m(徒歩5分) |
| その他利便施設4 | 善行市民センター・公民館・図書館 約580m(徒歩8分) |
0120-399-031
0120-399-031
物件の売却をご検討の方は、 はやめの査定依頼がおすすめです!
買い替えをご検討の方はこちら0120-399-031

