藤沢市片瀬5丁目
江ノ島電鉄 湘南海岸公園駅 徒歩5分
4LDK
建物面積:97.7㎡
土地面積:120.61㎡
新築
7,790万円



| 物件種別 | 新築戸建 |
| 所在地 | GoogleMaps |
| 交通 | 江ノ島電鉄 湘南海岸公園駅 徒歩3分 |
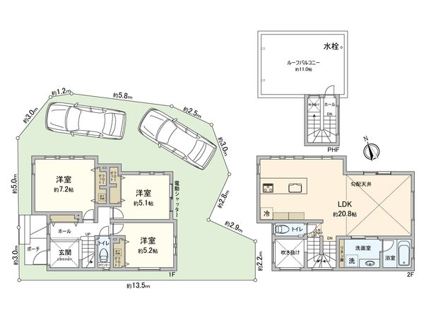
| 間取り | 3LDK |
| 建物面積 | 96.47㎡(約29.18坪) |
| 土地面積 | 120.56㎡(約36.46坪) |
| 築年月 | 2026年02月築(予定) |
返済計画を入力すると毎月のお支払い目安を表示できます
-物件のおすすめポイント- ▼立地 ・江ノ島電鉄「湘南海岸公園」駅 徒歩3分 ・第一種低層住居専用地域の閑静な住宅街 ▼建物の特徴 ・カースペース2台分あり(車種による) ・角地につき開放感あり ・制震装置(マモリー)採用 ・木目を生かしたカリフォルニアスタイル ▼お部屋の特徴 ・LDKは約20.8帖とゆったり寛げる空間 ・コミュニケーションを育むリビング階段がある3LDK ・勾配天井でシーリングファンの付いたリビング ・自然光が入る全居室2面採光 ・全居室収納あり ・開放的なルーフバルコニー約11帖 ・高窓を採用した吹き抜けの玄関 ▼設備 ・ペニンシュラキッチン ・食器洗浄乾燥機付キッチン ・タッチレス水栓 ・2口水栓洗面 ・ガス衣類乾燥機用(乾太くん)ガス栓 ・1・2階トイレ付 ・電動シャッター付(洋室約5.1帖) ・外部温水シャワー ▼周辺環境 ・スーパー、コンビニ、公園などが徒歩10分圏内 ■ ご希望の住まい探しをお手伝いします ━━━━・・・ 物件の詳細・ご相談はお気軽にお問い合わせください。
| 所在地 | GoogleMaps |
| 価格 | 7,790万円 |
| 交通 | 江ノ島電鉄 湘南海岸公園駅 徒歩3分 |
| その他費用 | - |
| 間取り | 3LDK |
| 建物面積 | 96.47㎡(約29.18坪) |
| 土地面積 | 120.56㎡(約36.46坪) |
| 築年月 | 2026年02月築(予定) |
| 建物構造 | 木造2階建 |
| 現況 | 未完成 |
| 駐車場 | 有 |
| 土地権利 | 所有権 |
| 地目 | 宅地 |
| 接道状況 | - |
| 建ぺい率 | 50% |
| 容積率 | 80% |
| 用途地域 | 第一種低層住居専用地域 |
| 都市計画 | 市街化区域 |
| 建築確認番号 | 第25KAK建確01895号 |
| 備考 | 法22条区域/宅地造成工事規制区域 ※1階建物面積に備蓄倉庫部分1.24平米を含みます。 |
| 引渡時期 | 2026年03月上旬以降 |
| 取引態様 | 仲介 |
| 更新日 | 2026年02月02日 |
| 次回更新予定 | 2026年02月16日 |
| 物件番号 | F90AGB76 |
最新のAI技術を活用した相談サービスです。
お客様一人ひとりのニーズに合わせて最適な情報をご提供します。
リハウスAIチャットの詳しい説明はこちら
GoogleMaps
| スーパー | 全日食チェーン YAOFUKU 約490m(徒歩7分) |
| 公園 | 上西原公園 約340m(徒歩5分) |
| 公園 | 下諏訪公園 約430m(徒歩6分) |
| 病院 | 片瀬クリニックプラザ 約380m(徒歩5分) |
| 小学校 | 藤沢市立片瀬小学校 約560m(徒歩7分) |
| 中学校 | 藤沢市立片瀬中学校 約1530m(徒歩20分) |
| その他利便施設1 | セブン-イレブン 藤沢片瀬5丁目店 約360m(徒歩5分) |
| その他利便施設2 | ハックドラッグ 江の島店 約1070m(徒歩14分) |
| その他利便施設3 | 片瀬市民センター・片瀬公民館・片瀬市民図書館 約570m(徒歩8分) |
| その他利便施設4 | 片瀬西浜・鵠沼海水浴場 約1030m(徒歩13分) |
0120-399-031
0120-399-031
物件の売却をご検討の方は、 はやめの査定依頼がおすすめです!
買い替えをご検討の方はこちら0120-399-031

