藤沢市鵠沼海岸3丁目
小田急電鉄江ノ島線 鵠沼海岸駅 徒歩4分
5LDK
建物面積:104.74㎡
土地面積:129.67㎡
新築
7,190万円



| 物件種別 | 新築戸建 |
| 所在地 | GoogleMaps |
| 交通 | 小田急電鉄江ノ島線 鵠沼海岸駅 徒歩11分 |
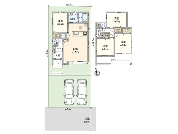
| 間取り | 4LDK |
| 建物面積 | 96.67㎡(約29.24坪) |
| 土地面積 | 130.89㎡(約39.59坪) |
| 築年月 | 2025年12月築(予定) |
返済計画を入力すると毎月のお支払い目安を表示できます
-物件のおすすめポイント- ▼立地 ・小田急電鉄江ノ島線「鵠沼海岸」駅 徒歩11分 ▼建物の特徴 ・第一種低層住居専用地域の閑静な住宅街 ・南道路に面しているため陽当たり良好 ・カースペース2台分あり(車種による) ▼お部屋の特徴 ・2面採光で明るく風通しのいいLDK約17.2帖 ・自然光が入る全居室2面採光 ・全居室約6帖以上の使いやすい間取り ・掃除がしやすい全居室フローリング仕様 ・全居室収納あり ▼設備 ・家族の様子を見ながら料理ができる対面式キッチン ・浄水器一体型水栓 ・ゆったりと入れる1坪タイプのお風呂 ・1・2階温水洗浄便座付トイレ ・来客時に便利なTVモニター付インターホン ▼周辺環境 ・鵠南小学校まで徒歩10分(約740m) ・Fujiスーパー鵠沼店まで徒歩4分(約270m) ・ファミリーマート鵠沼海岸7丁目店まで徒歩3分(約190m) ・クリエイトSD藤沢鵠沼海岸店まで徒歩5分(約350m) ・八部公園まで徒歩2分(約140m) ■ ご希望の住まい探しをお手伝いします ━━━━・・・ 物件の詳細・ご相談はお気軽にお問い合わせください。
| 所在地 | GoogleMaps |
| 価格 | 7,190万円 |
| 交通 | 小田急電鉄江ノ島線 鵠沼海岸駅 徒歩11分 |
| その他費用 | - |
| 間取り | 4LDK |
| 建物面積 | 96.67㎡(約29.24坪) |
| 土地面積 | 130.89㎡(約39.59坪) |
| 築年月 | 2025年12月築(予定) |
| 建物構造 | 木造2階建 |
| 現況 | 未完成 |
| 駐車場 | 有 |
| 土地権利 | 所有権 |
| 地目 | 宅地 |
| 接道状況 | 南側: 約 4m (公道) |
| 建ぺい率 | 50% |
| 容積率 | 80% |
| 用途地域 | 第一種低層住居専用地域 |
| 都市計画 | 市街化区域 |
| 建築確認番号 | 第HPA-25-06218-1号 |
| 備考 | 法22条区域/宅地造成工事規制区域 |
| 引渡時期 | 2026年01月下旬以降 |
| 取引態様 | 仲介 |
| 更新日 | 2025年12月08日 |
| 次回更新予定 | 2025年12月22日 |
| 物件番号 | F90AGB7A |
最新のAI技術を活用した相談サービスです。
お客様一人ひとりのニーズに合わせて最適な情報をご提供します。
リハウスAIチャットの詳しい説明はこちら
GoogleMaps
| スーパー | FUJI 鵠沼店 約270m(徒歩4分) |
| スーパー | そうてつローゼン鵠沼店 約610m(徒歩8分) |
| 公園 | 鵠沼公園 (よつば公園) 約130m(徒歩2分) |
| 公園 | 藤沢市立八部公園 約140m(徒歩2分) |
| 病院 | 野沢内科循環器内科 約830m(徒歩11分) |
| 小学校 | 鵠南小学校 約740m(徒歩10分) |
| 中学校 | 藤沢市立湘洋中学校 約1070m(徒歩14分) |
| その他利便施設1 | ファミリーマート 鵠沼海岸七丁目店 約190m(徒歩3分) |
| その他利便施設2 | クリエイトS・D 藤沢鵠沼海岸店 約350m(徒歩5分) |
| その他利便施設3 | 鵠沼海岸郵便局 約710m(徒歩9分) |
0120-399-031
0120-399-031
物件の売却をご検討の方は、 はやめの査定依頼がおすすめです!
買い替えをご検討の方はこちら0120-399-031

