藤沢市片瀬5丁目
江ノ島電鉄 湘南海岸公園駅 徒歩5分
4LDK
建物面積:97.7㎡
土地面積:120.61㎡
新築
7,898万円



| 物件種別 | 新築戸建 |
| 所在地 | GoogleMaps |
| 交通 | |
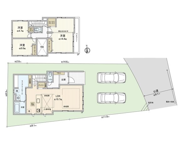
| 間取り | 3LDK |
| 建物面積 | 106.73㎡(約32.28坪) |
| 土地面積 | 141.08㎡(約42.67坪) |
| 築年月 | 2026年02月築(予定) |
返済計画を入力すると毎月のお支払い目安を表示できます
-物件のおすすめポイント- ▼立地 ・江ノ島電鉄「湘南海岸公園」駅 徒歩5分 ・湘南モノレール「湘南江の島」駅 徒歩13分 ▼建物の特徴 ・カースペース2台分あり(車種による) ・全居室二面採光の3LDK ▼お部屋の特徴 ・折上天井で開放感のあるLDKは広々約19.7帖 ・自然光が入る全居室2面採光 ・掃除がしやすい全居室フローリング仕様 ・将来を見据えたツードアワンルームの洋室約14.4帖 ▼設備 ・LDには足元から暖かい床暖房 ・家族の様子を見ながら料理ができる対面式キッチン ・家事の時短になるビルトイン食器洗浄機付 ・ゆったりと入れる1坪タイプのお風呂 ・家事効率が上がるランドリールーム ・大型の荷物を収納できるウォークインクローゼット ・断熱性、遮熱性、防露性に優れた複層ガラス採用 ▼周辺環境 ・第一種低層住居専用地域の閑静な住宅街 ・片瀬西浜/鵠沼海水浴場まで徒歩13分(1050m) ■ ご希望の住まい探しをお手伝いします ━━━━・・・ 物件の詳細・ご相談はお気軽にお問い合わせください。
| 所在地 | GoogleMaps |
| 価格 | 7,898万円 |
| 交通 | |
| その他費用 | - |
| 間取り | 3LDK |
| 建物面積 | 106.73㎡(約32.28坪) |
| 土地面積 | 141.08㎡(約42.67坪) |
| 築年月 | 2026年02月築(予定) |
| 建物構造 | 木造2階建 |
| 現況 | 未完成 |
| 駐車場 | 有 |
| 土地権利 | 所有権 |
| 地目 | 山林(現況地目:宅地) |
| 接道状況 | 東側: 約 4.1m (公道) |
| 建ぺい率 | 50% |
| 容積率 | 80% |
| 用途地域 | 第一種低層住居専用地域 |
| 都市計画 | 市街化区域 |
| 建築確認番号 | 第25UDI1W健07202号 |
| 備考 | 法22条区域/宅地造成工事規制区域 ※敷地の一部に隣地所有者との車両通行等に関する協定地部分あり |
| 引渡時期 | 相談 |
| 取引態様 | 仲介 |
| 更新日 | 2026年02月02日 |
| 次回更新予定 | 2026年02月16日 |
| 物件番号 | F90AGB85 |
最新のAI技術を活用した相談サービスです。
お客様一人ひとりのニーズに合わせて最適な情報をご提供します。
リハウスAIチャットの詳しい説明はこちら
GoogleMaps
| スーパー | 全日食チェーン YAOFUKU 約840m(徒歩11分) |
| 公園 | 西方公園 約170m(徒歩3分) |
| 病院 | 片瀬クリニックプラザ 約740m(徒歩10分) |
| 小学校 | 藤沢市立片瀬小学校 約920m(徒歩12分) |
| 中学校 | 藤沢市立片瀬中学校 約1850m(徒歩24分) |
| その他利便施設1 | セブン-イレブン 藤沢片瀬5丁目店 約700m(徒歩9分) |
| その他利便施設2 | ハックドラッグ 江の島店 約1190m(徒歩15分) |
| その他利便施設3 | 片瀬郵便局 約730m(徒歩10分) |
| その他利便施設4 | 片瀬西浜・鵠沼海水浴場 約1050m(徒歩14分) |
| その他利便施設5 | 湘南海岸公園駅(江ノ島電鉄) 約380m(徒歩5分) |
0120-399-031
0120-399-031
物件の売却をご検討の方は、 はやめの査定依頼がおすすめです!
買い替えをご検討の方はこちら0120-399-031

