藤沢市鵠沼松が岡2丁目
小田急電鉄江ノ島線 鵠沼海岸駅 徒歩11分
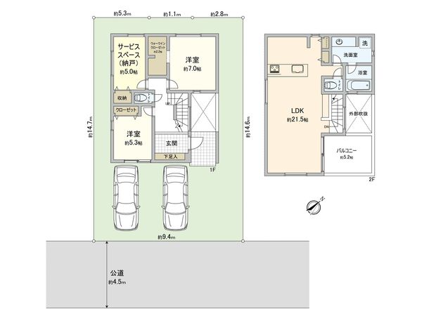
2SLDK
建物面積:97.7㎡
土地面積:138.53㎡
2026年06月築(予定)
8,480万円



| 物件種別 | 新築戸建 |
| 所在地 | GoogleMaps |
| 交通 | 小田急電鉄江ノ島線 鵠沼海岸駅 徒歩11分 |
| 間取り | 2SLDK ※S・サービススペースは納戸です |
| 建物面積 | 96.05㎡(約29.05坪) |
| 土地面積 | 138.53㎡(約41.9坪) |
| 築年月 | 2026年06月築(予定) |
-物件のおすすめポイント- ▼立地 ・小田急江ノ島線「鵠沼海岸」駅 徒歩11分 ・第一種低層住居専用地域の閑静な住宅街 ▼建物の特徴 ・カースペース2台分あり(車種による) ・手ぶらで開錠できる顔認証を設置 ▼お部屋の特徴 ・吹き抜けのあるLDKは広々約21.5帖 ・掃除がしやすい全居室フローリング仕様 ・バルコニーはウッドデッキ敷の約5.2帖 ▼設備 ・家族との会話が弾む対面式キッチン ・パントリー付 ・窓がある浴室 ・ゆったりと入れる1坪タイプのお風呂 ・大型の荷物を収納できるウォークインクローゼット ・全居室収納あり ・1・2階トイレ付 ▼周辺環境 ・鵠沼海岸(湘南海岸公園前) 約810m(徒歩11分) ・ファミリーマート 鵠沼海岸店 約780m(徒歩10分) ・クリエイトS・D 小田急鵠沼海岸駅前店 約810m(徒歩11分) ■ ご希望の住まい探しをお手伝いします ━━━━・・・ 物件の詳細・ご相談はお気軽にお問い合わせください。
| 所在地 | GoogleMaps |
| 価格 | 8,480万円 |
| 交通 | 小田急電鉄江ノ島線 鵠沼海岸駅 徒歩11分 |
| その他費用 | - |
| 間取り | 2SLDK ※S・サービススペースは納戸です |
| 建物面積 | 96.05㎡(約29.05坪) |
| 土地面積 | 138.53㎡(約41.9坪) |
| 築年月 | 2026年06月築(予定) |
| 建物構造 | 木造2階建 |
| 現況 | 未完成 |
| 駐車場 | 有 |
| 土地権利 | 所有権 |
| 地目 | 宅地 |
| 接道状況 | 南東側: 約 4.5m (公道) |
| 建ぺい率 | 50% |
| 容積率 | 80% |
| 用途地域 | 第一種低層住居専用地域 |
| 都市計画 | 市街化区域 |
| 建築確認番号 | 第2025確認建築静建住ま10584号 |
| 備考 | 法22条区域/宅地造成工事規制区域/鵠南みどり会住民協定区域 |
| 引渡時期 | 相談 |
| 取引態様 | 仲介 |
| 更新日 | 2026年05月11日 |
| 次回更新予定 | 2026年05月25日 |
| 物件番号 | F90BGA29 |
最新のAI技術を活用した相談サービスです。
お客様一人ひとりのニーズに合わせて最適な情報をご提供します。
リハウスAIチャットの詳しい説明はこちら
GoogleMaps
| スーパー | そうてつローゼン 鵠沼店 約1080m(徒歩14分) |
| 公園 | 下藤ヶ谷公園 約400m(徒歩5分) |
| 病院 | 呉クリニック 約640m(徒歩8分) |
| 小学校 | 藤沢市立鵠洋小学校 約1460m(徒歩19分) |
| 中学校 | 藤沢市立湘洋中学校 約1900m(徒歩24分) |
| その他利便施設1 | ファミリーマート 鵠沼海岸店 約780m(徒歩10分) |
| その他利便施設2 | クリエイトS・D 小田急鵠沼海岸駅前店 約810m(徒歩11分) |
| その他利便施設3 | 鵠沼駅前郵便局 約520m(徒歩7分) |
| その他利便施設4 | 鵠沼市民センター・市民図書館 約1000m(徒歩13分) |
| その他利便施設5 | 鵠沼海岸(湘南海岸公園前) 約810m(徒歩11分) |
0120-399-031
0120-399-031
物件の売却をご検討の方は、 はやめの査定依頼がおすすめです!
買い替えをご検討の方はこちら0120-399-031

