寒川町一之宮4丁目 新築戸建
2,580万円



| 物件種別 | 新築戸建 |
| 所在地 | GoogleMaps |
| 交通 | 相模線 寒川駅 徒歩13分 |
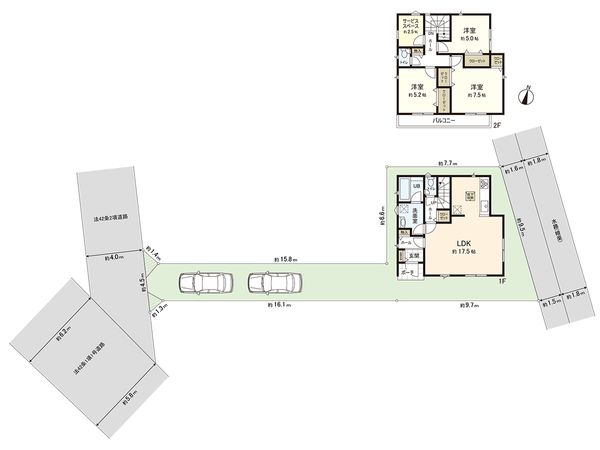
| 間取り | 3SLDK ※S・サービススペースは納戸です |
| 建物面積 | 90.72㎡(約27.44坪) |
| 土地面積 | 125.64㎡(約38坪) ※路地状敷地部分約45㎡含む |
| 築年月 | 2025年11月築 |
この物件情報を共有する
おすすめポイント
設備
- 浴室乾燥機
- TVモニタ付インターホン
■ おすすめポイント ━━━━━━━━━・・・・・ 〇JR相模線「寒川駅」まで約1000m、徒歩13分 〇スーパーや郵便局、公園が徒歩圏内に充実 〇LDKは約17.5帖、3口コンロ付きシステムキッチン 〇全居室収納つき 〇ワークスペースとしても使える約2.5帖の納戸あり 〇TVモニター付インターホンや人感センサー玄関灯で防犯面も安心 〇防音・断熱性に優れたペアガラスを全居室に採用 〇制震装置「SAFE365」搭載の制震耐震住宅 〇駐車スペース2台分(車種による) ■ 担当者より ━━━━━━━━━━━━・・・・・ 周辺環境や施設のご案内はもちろん、周辺物件も併せてご紹介できます。また、購入に際しての諸費用、住宅ローン(月々の返済例など)等、資金計画のご相談も承っておりますので、お気軽にお問合せ下さい!
物件情報
| 所在地 | GoogleMaps |
| 価格 | 2,580万円 |
| 交通 | 相模線 寒川駅 徒歩13分 |
| その他費用 | - |
| 間取り | 3SLDK ※S・サービススペースは納戸です |
| 建物面積 | 90.72㎡(約27.44坪) |
| 土地面積 | 125.64㎡(約38坪) ※路地状敷地部分約45㎡含む |
| 築年月 | 2025年11月築 |
| 建物構造 | 木造2階建 |
| 現況 | 空家 |
| 駐車場 | 有 |
| 土地権利 | 所有権 |
| 地目 | 宅地 |
| 接道状況 | 西側: 約 4m (公道) |
| 建ぺい率 | 60% |
| 容積率 | 200%(但し、前面道路幅員により160%に制限されます。) |
| 用途地域 | 準工業地域 |
| 都市計画 | 市街化区域 |
| 備考 | ※敷地内に電柱、及び支線が入る場合があります。 |
| 引渡時期 | 相談 |
| 取引態様 | 仲介 |
| 更新日 | 2026年04月13日 |
| 次回更新予定 | 2026年04月27日 |
| 物件番号 | F99AGB91 |
この物件のことを
AIに聞いてみませんか?
最新のAI技術を活用した相談サービスです。
お客様一人ひとりのニーズに合わせて最適な情報をご提供します。
リハウスAIチャットの詳しい説明はこちら

周辺情報
GoogleMaps
| スーパー | JAさがみ わいわい市寒川店 約880m(徒歩11分) |
| スーパー | Fuji寒川店 約1040m(徒歩13分) |
| 公園 | 川とのふれあい公園 約780m(徒歩10分) |
| 公園 | さむかわ中央公園 約900m(徒歩12分) |
| 病院 | 寒川病院 約840m(徒歩11分) |
| 小学校 | 寒川町立一之宮小学校 約1120m(徒歩14分) |
| 中学校 | 寒川町立寒川中学校 約540m(徒歩7分) |
| その他利便施設1 | セブンイレブン寒川一之宮3丁目店 約500m(徒歩7分) |
| その他利便施設2 | 寒川郵便局 約720m(徒歩9分) |
取扱店舗
- 営業時間
- 10:00~18:00
- 定休日
- 毎週火曜日・水曜日
- 住所
- 神奈川県茅ヶ崎市幸町22-8 S-FORT 茅ヶ崎1F
三井不動産リアルティ株式会社
国土交通大臣(15)第777号
三井のリハウス 茅ケ崎センター
- 営業時間10:00~18:00
- 定休日毎週火曜日・水曜日
0120-329-031
高座郡寒川町の物件情報
この物件を見学してみませんか?
この物件についてお問い合わせ
物件・住環境の詳しい情報、購入・ローン相談など、ささいなことでもお気軽にお問い合わせください。三井のリハウス 茅ケ崎センター
- 営業時間10:00~18:00
- 定休日毎週火曜日・水曜日
0120-329-031

物件の売却をご検討の方は、 はやめの査定依頼がおすすめです!
買い替えをご検討の方はこちら見学予約
お問い合わせ
0120-329-031
- 営業時間 10:00~18:00
- 定休日 毎週火曜日・水曜日

