名古屋市瑞穂区平郷町3丁目
名古屋市桜通線 瑞穂区役所駅 徒歩15分
4LDK
建物面積:123.16㎡
土地面積:77.94㎡
2026年03月築(予定)
4,690万円



| 物件種別 | 新築戸建 |
| 所在地 | GoogleMaps |
| 交通 | |
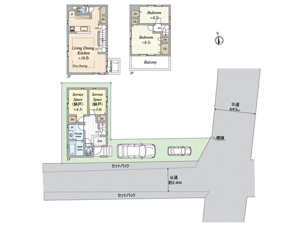
| 間取り | 2SLDK ※S・サービススペースは納戸です |
| 建物面積 | 86.69㎡(約26.22坪) |
| 土地面積 | 83.97㎡(約25.4坪) ※セットバック約11.55㎡を含む |
| 築年月 | 2025年12月築 |
返済計画を入力すると毎月のお支払い目安を表示できます
-物件のおすすめポイント- ▼立地 ・地下鉄2沿線利用可能 ・地下鉄桜通線「瑞穂運動場西」駅 徒歩4分 ・地下鉄名城線・桜通線「新瑞橋」駅 徒歩8分 ▼建物・お部屋の特徴 ・令和7年12月完成予定の新築3階建 ・建物面積:86.69平米(約26.22坪) 間取り:2LDK+2S ・約16.0帖のゆったりとしたLDK ・南面道路のため日当たり良好 ・駐車場2台利用可能(縦列駐車・車種による) ▼設備 ・家族との会話が弾む対面式キッチン ・南面バルコニーで明るい2階リビング ・リビング・ダイニングにガス温水式床暖房あり ・キッチン横収納、納戸2室など充実した収納スペースあり ・Low-E複層ガラス、省エネ給湯器「エコジョーズ」を採用 ▼周辺環境 ・小中学校まで徒歩10分以内 ■ ご希望の住まい探しをお手伝いします ━━━━━・・・ 物件の詳細・ご相談はお気軽にお問い合わせください。
| 所在地 | GoogleMaps |
| 価格 | 4,690万円 |
| 交通 | |
| その他費用 | - |
| 間取り | 2SLDK ※S・サービススペースは納戸です |
| 建物面積 | 86.69㎡(約26.22坪) |
| 土地面積 | 83.97㎡(約25.4坪) ※セットバック約11.55㎡を含む |
| 築年月 | 2025年12月築 |
| 建物構造 | 木造3階建 |
| 現況 | 空家 |
| 駐車場 | 有 |
| 土地権利 | 所有権 |
| 地目 | 宅地 |
| 接道状況 | 東側: 約 4.5m (公道)、南側: 約 2.4m (公道) |
| 建ぺい率 | 60% |
| 容積率 | 200% |
| 用途地域 | 第二種中高層住居専用地域 |
| 都市計画 | 市街化区域 |
| 備考 | - |
| 引渡時期 | 相談 |
| 取引態様 | 仲介 |
| 更新日 | 2025年12月26日 |
| 次回更新予定 | 2026年01月09日 |
| 物件番号 | FA2AGA6E |
最新のAI技術を活用した相談サービスです。
お客様一人ひとりのニーズに合わせて最適な情報をご提供します。
リハウスAIチャットの詳しい説明はこちら
GoogleMaps
| スーパー | ヤマダイ瑞穂店 約550m(徒歩7分) |
| 公園 | 瑞穂ヶ丘公園 約740m(徒歩10分) |
| 小学校 | 瑞穂小学校 約550m(徒歩7分) |
| 中学校 | 津賀田中学校 約470m(徒歩6分) |
| その他利便施設1 | セブンイレブン名古屋神前町1丁目店 約350m(徒歩5分) |
| その他利便施設2 | ドラッグスギヤマ豊岡通店 約650m(徒歩9分) |
| その他利便施設3 | 名古屋惣作郵便局 約580m(徒歩8分) |
0120-34-0031
0120-34-0031
物件の売却をご検討の方は、 はやめの査定依頼がおすすめです!
買い替えをご検討の方はこちら0120-34-0031

