名古屋市天白区梅が丘4丁目
名古屋市東山線 星ヶ丘駅 バス24分 三郎廻間 停歩10分
3SLDK
建物面積:95.56㎡
土地面積:105.6㎡
2026年04月築(予定)
4,180万円



| 物件種別 | 新築戸建 |
| 所在地 | GoogleMaps |
| 交通 | |
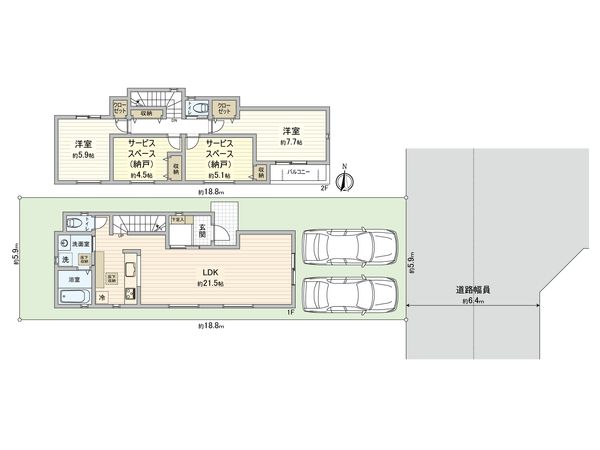
| 間取り | 2SLDK ※S・サービススペースは納戸です |
| 建物面積 | 99.57㎡(約30.11坪) |
| 土地面積 | 111.98㎡(約33.87坪) |
| 築年月 | 2026年02月築(予定) |
返済計画を入力すると毎月のお支払い目安を表示できます
■おすすめポイント―――――――――――――・・・・・ 〇間取り 2LDK+2Sの新築戸建 〇約21.5帖のゆったりとしたLDK 〇家族との会話が弾む対面式キッチン 〇窓付きの明るい浴室 〇収納付き三面鏡 〇全居室に収納有り 〇来客時に便利、TVモニター付インターホン 〇駐車場2台分有り(車種による) 〇地盤保証20年、シロアリ保証5年
| 所在地 | GoogleMaps |
| 価格 | 4,180万円 |
| 交通 | |
| その他費用 | - |
| 間取り | 2SLDK ※S・サービススペースは納戸です |
| 建物面積 | 99.57㎡(約30.11坪) |
| 土地面積 | 111.98㎡(約33.87坪) |
| 築年月 | 2026年02月築(予定) |
| 建物構造 | 木造2階建 |
| 現況 | 未完成 |
| 駐車場 | - |
| 土地権利 | 所有権 |
| 地目 | 宅地 |
| 接道状況 | 東側: 約 6.4m (公道) |
| 建ぺい率 | 50% |
| 容積率 | 150% |
| 用途地域 | 第一種低層住居専用地域 |
| 都市計画 | 市街化区域 |
| 建築確認番号 | 第KS125-0420-56566号 |
| 備考 | - |
| 引渡時期 | 相談 |
| 取引態様 | 仲介 |
| 更新日 | 2026年01月08日 |
| 次回更新予定 | 2026年01月22日 |
| 物件番号 | FA4AGA4F |
最新のAI技術を活用した相談サービスです。
お客様一人ひとりのニーズに合わせて最適な情報をご提供します。
リハウスAIチャットの詳しい説明はこちら
GoogleMaps
| スーパー | ピアゴ植田店 約1500m(徒歩19分) |
| 公園 | 梅が丘北公園 約350m(徒歩5分) |
| 病院 | ノア梅森台クリニック 約900m(徒歩12分) |
| 小学校 | 植田北小学校 約1400m(徒歩18分) |
| 中学校 | 植田中学校 約1300m(徒歩17分) |
| その他利便施設1 | ローソン日進梅森台二丁目店 約1100m(徒歩14分) |
| その他利便施設2 | ドラッグストアコスモス植田北店 約1200m(徒歩15分) |
| その他利便施設3 | 名古屋梅森坂郵便局 約1300m(徒歩17分) |
0120-36-0031
0120-36-0031
物件の売却をご検討の方は、 はやめの査定依頼がおすすめです!
買い替えをご検討の方はこちら0120-36-0031

