名古屋市緑区ほら貝3丁目
名古屋市桜通線 神沢駅 徒歩11分
3SLDK
建物面積:100.81㎡
土地面積:129㎡
新築
4,699万円



| 物件種別 | 新築戸建 |
| 所在地 | GoogleMaps |
| 交通 | 名古屋市桜通線 神沢駅 徒歩11分 |
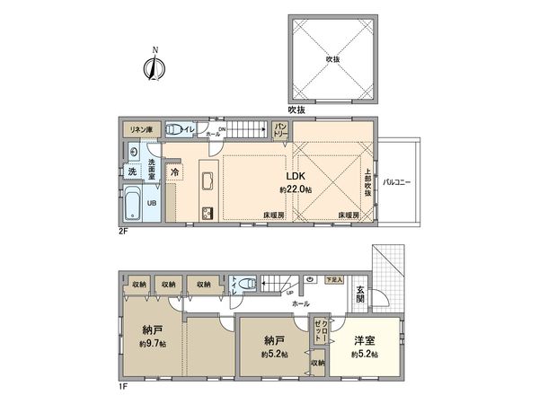
| 間取り | 1SLDK ※S・サービススペースは納戸です |
| 建物面積 | 102.05㎡(約30.87坪) |
| 土地面積 | 134.82㎡(約40.78坪) |
| 築年月 | 2026年01月築 |
■ おすすめポイント ━━━━━━━━━━━━━━━・・・・・ 〇ZEH水準仕様・長期優良住宅 〇地下鉄桜通線『神沢』駅より徒歩11分 〇2LDK+S×2(※S・サービススペースは納戸) 〇LDK広々約22.0帖 〇解放感のある吹抜 〇床暖房有り(LDK部分) 〇パントリー有り 〇全居室収納有り 〇駐車スペース2台分あり(ただし車種による)
| 所在地 | GoogleMaps |
| 価格 | 4,699万円 |
| 交通 | 名古屋市桜通線 神沢駅 徒歩11分 |
| その他費用 | - |
| 間取り | 1SLDK ※S・サービススペースは納戸です |
| 建物面積 | 102.05㎡(約30.87坪) |
| 土地面積 | 134.82㎡(約40.78坪) |
| 築年月 | 2026年01月築 |
| 建物構造 | 木造2階建 |
| 現況 | 空家 |
| 駐車場 | - |
| 土地権利 | 所有権 |
| 地目 | 宅地 |
| 接道状況 | 東側: 約 6.6m (公道) |
| 建ぺい率 | 40% |
| 容積率 | 80% |
| 用途地域 | 第一種低層住居専用地域 |
| 都市計画 | 市街化区域 |
| 備考 | 【小学校について】通学路の指定につきましては各学校、教育委員会へご確認ください。 |
| 引渡時期 | 即時 |
| 取引態様 | 仲介 |
| 更新日 | 2026年05月14日 |
| 次回更新予定 | 2026年05月28日 |
| 物件番号 | FA5ARA11 |
最新のAI技術を活用した相談サービスです。
お客様一人ひとりのニーズに合わせて最適な情報をご提供します。
リハウスAIチャットの詳しい説明はこちら
GoogleMaps
| スーパー | 平和堂グリーンプラザ店 約650m(徒歩9分) |
| 病院 | たかぎファミリークリニック 約120m(徒歩2分) |
| 小学校 | 戸笠小学校 約800m(徒歩10分) |
| 中学校 | 神沢中学校 約320m(徒歩4分) |
| その他利便施設1 | ローソン緑区滝ノ水店 約730m(徒歩10分) |
| その他利便施設2 | スギドラッグ相川店 約500m(徒歩7分) |
| その他利便施設3 | 名古屋螺貝郵便局 約300m(徒歩4分) |
0120-16-0031
0120-16-0031
物件の売却をご検討の方は、 はやめの査定依頼がおすすめです!
買い替えをご検討の方はこちら0120-16-0031

