杉並区上高井戸3丁目
京王電鉄京王線 八幡山駅 徒歩10分
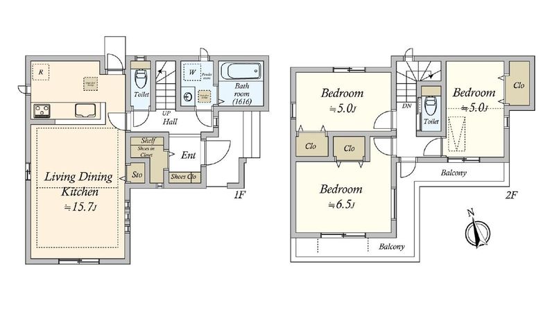
3LDK
建物面積:84.04㎡
土地面積:119.54㎡
2026年02月築(予定)
8,790万円



| 物件種別 | 新築戸建 |
| 所在地 | GoogleMaps |
| 交通 | |
| 間取り | 3LDK |
| 建物面積 | 81.56㎡(約24.67坪) |
| 土地面積 | 100.48㎡(約30.39坪) ※別途私道約104.4㎡有 (共有持分 1/6) |
| 築年月 | 2025年12月築(予定) |
返済計画を入力すると毎月のお支払い目安を表示できます
■ おすすめポイント ━━━━━━━━━━━━━━━ ○ 2025年12月完成予定の新築戸建 ○ 低層住居専用地域の閑静な住宅街 ○ 南東側道路につき陽当り良好 ○ 居住者以外の通行がなくお子様の飛び出しにも安心です ○ 2路線2駅利用可 ■ 設備・仕様 ━━━━━━━━━━━━━━━ ○ 耐震等級3級(最高等級)取得予定 ○ ZEH水準住宅 ○ ガス温水式床暖房(LD部分) ○ ビルトイン食洗機 ○ 浄水機能付きキッチン水栓 ○ スリムタイプレンジフード ○ キッチン床下収納 ○ 浴室換気乾燥暖房機 ○ 三面鏡タイプシャンプードレッサー ○ シャワートイレ(1、2階とも) ○ 複層ガラス(全窓) 【家を買い替えたいけど、売却が先?購入が先?何から始めればいいの?】 そんなお悩みをお持ちの方も、お気軽にご相談ください。 まずはフリーコール:0120-171-173【三井のリハウス】までお問い合わせください。
| 所在地 | GoogleMaps |
| 価格 | 8,790万円 |
| 交通 | |
| その他費用 | - |
| 間取り | 3LDK |
| 建物面積 | 81.56㎡(約24.67坪) |
| 土地面積 | 100.48㎡(約30.39坪) ※別途私道約104.4㎡有 (共有持分 1/6) |
| 築年月 | 2025年12月築(予定) |
| 建物構造 | 木造2階建 |
| 現況 | 未完成 |
| 駐車場 | - |
| 土地権利 | 所有権 |
| 地目 | 宅地 |
| 接道状況 | 南東側: 約 4m (私道) |
| 建ぺい率 | 40% |
| 容積率 | 80% |
| 用途地域 | 第一種低層住居専用地域 |
| 都市計画 | 市街化区域 |
| 建築確認番号 | 第HPA-25-07927-1号 |
| 備考 | 前記建物面積には備蓄倉庫部分1.24平米を含みます |
| 引渡時期 | 相談 |
| 取引態様 | 仲介 |
| 更新日 | 2025年11月28日 |
| 次回更新予定 | 2025年12月12日 |
| 物件番号 | FAIAGA3B |
最新のAI技術を活用した相談サービスです。
お客様一人ひとりのニーズに合わせて最適な情報をご提供します。
リハウスAIチャットの詳しい説明はこちら
GoogleMaps
| スーパー | サミット芦花公園駅前店 約940m(徒歩12分) |
| 小学校 | 区立富士見丘小学校 約870m(徒歩11分) |
| 中学校 | 区立富士見丘中学校(仮校舎) 約400m(徒歩5分) |
| その他利便施設1 | ローソン上高井戸2丁目店 約430m(徒歩6分) |
| その他利便施設2 | ファミリーマート芦花公園駅北店 約680m(徒歩9分) |
| その他利便施設3 | セブンイレブン杉並芦花公園店 約770m(徒歩10分) |
| その他利便施設4 | ドン・キホーテ環八世田谷店 約1220m(徒歩16分) |
0120-171-173
0120-171-173
物件の売却をご検討の方は、 はやめの査定依頼がおすすめです!
買い替えをご検討の方はこちら0120-171-173

