横浜市戸塚区平戸町
横須賀線 東戸塚駅 バス15分 せりぎんタウン 停歩5分
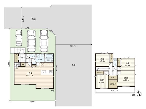
4LDK
建物面積:109.3㎡
土地面積:142.7㎡
2026年03月築(予定)
6,090万円



| 物件種別 | 新築戸建 |
| 所在地 | GoogleMaps |
| 交通 | |
| 間取り | 4LDK |
| 建物面積 | 109.3㎡(約33.06坪) |
| 土地面積 | 143.08㎡(約43.28坪) |
| 築年月 | 2026年03月築(予定) |
返済計画を入力すると毎月のお支払い目安を表示できます
■ おすすめポイント━━━━━━━━━━━━━・・・・・ ○ 敷地面積143.08平米 建物面積109.30平米 4LDKの新築戸建 ○ スーパーが複数点在する便利な住環境 ○ 角地につき通風良好 ○ 第一種低層住居専用地域の閑静な住宅街 ○ 広々とした約22.7帖のLDK ■ 設備・仕様 ━━━━━━━━━━━━━━━・・・・・ ○ 全居室に豊富な収納スペース ○ 家族との会話が弾むリビング階段・対面式キッチン ○ 収納に大活躍のウォークインクローゼット ○ 玄関には整理整頓に便利なシューズインクローク ○ 洋室2室を跨ぐバルコニー ■ 担当者からひとこと━━━━━━━━━━━━・・・・・ 戸塚区平戸町の新築戸建てのご紹介です。 閑静な住宅街で落ち着いた雰囲気の住環境です。 物件の詳細資料を取り揃えておりますので、 ご希望の方はメールフォームまたはフリーコールにて 三井のリハウス東戸塚センターまでご連絡ください。 皆様からのお問い合わせを心よりお待ちしております。
| 所在地 | GoogleMaps |
| 価格 | 6,090万円 |
| 交通 | |
| その他費用 | - |
| 間取り | 4LDK |
| 建物面積 | 109.3㎡(約33.06坪) |
| 土地面積 | 143.08㎡(約43.28坪) |
| 築年月 | 2026年03月築(予定) |
| 建物構造 | 木造2階建 |
| 現況 | 未完成 |
| 駐車場 | 有 |
| 土地権利 | 所有権 |
| 地目 | 宅地 |
| 接道状況 | 南東側: 約 7.5m (私道)、北東側: 約 4.5m (私道) |
| 建ぺい率 | 50% |
| 容積率 | 80% |
| 用途地域 | 第一種低層住居専用地域 |
| 都市計画 | 市街化区域 |
| 建築確認番号 | 第2025SBC-確02034H号 |
| 備考 | - |
| 引渡時期 | 2026年04月中旬以降 |
| 取引態様 | 仲介 |
| 更新日 | 2026年02月14日 |
| 次回更新予定 | 2026年02月28日 |
| 物件番号 | FE2BGA12 |
最新のAI技術を活用した相談サービスです。
お客様一人ひとりのニーズに合わせて最適な情報をご提供します。
リハウスAIチャットの詳しい説明はこちら
GoogleMaps
| スーパー | スーパー生鮮館TAIGA 芹が谷店 約350m(徒歩5分) |
| スーパー | FUJI 芹ケ谷店 約700m(徒歩9分) |
| スーパー | 業務用スーパー芹が谷店 約450m(徒歩6分) |
| 公園 | パンダ公園 約250m(徒歩4分) |
| 病院 | せりがや総合内科クリニック 約750m(徒歩10分) |
| 小学校 | 平戸台小学校 約970m(徒歩13分) |
| 中学校 | 平戸中学校 約1210m(徒歩16分) |
| その他利便施設1 | ローソン 芹が谷四丁目店 約350m(徒歩5分) |
| その他利便施設2 | クリエイトS・D港南芹が谷店 約850m(徒歩11分) |
| その他利便施設3 | 横浜芹が谷郵便局 約700m(徒歩9分) |
三井不動産リアルティ株式会社
国土交通大臣(15)第777号
0120-356-031
0120-356-031
物件の売却をご検討の方は、 はやめの査定依頼がおすすめです!
買い替えをご検討の方はこちら0120-356-031

