新座市池田5丁目
西武池袋・豊島線 大泉学園駅 バス7分 大泉風致地区 停歩17分
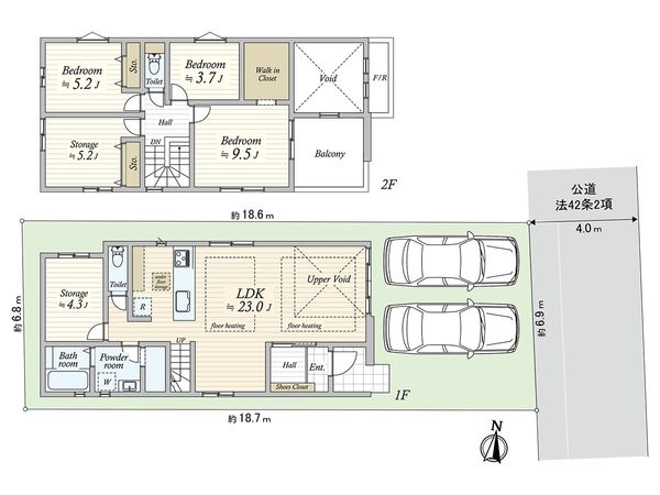
3LDK+2S
建物面積:112.09㎡
土地面積:137.64㎡
2026年08月築(予定)
5,099万円



| 物件種別 | 新築戸建 |
| 所在地 | GoogleMaps |
| 交通 | 西武池袋・豊島線 大泉学園駅 バス7分 大泉風致地区 停歩17分 |
| 間取り | 3LDK+2S ※S・サービススペースは納戸です |
| 建物面積 | 111.08㎡(約33.6坪) |
| 土地面積 | 130.05㎡(約39.34坪) |
| 築年月 | 2026年08月築(予定) |
■ 物件名 ━━━━━━━━━━━━・・・・ ○ 新座市池田5丁目 新築戸建 ■ 交通 ━━━━━━━━━━━━・・・・ ○ 西武池袋線 「大泉学園」駅 「大泉風致地区」停歩約17分 バス7分 ■ おすすめポイント ━━━━━━━━━━━・・・・ ○ 敷地面積130.05平米(約39.47坪) ○ 建物面積111.08平米(約33.60坪) ○3LDK+2Sの間取り 〇 約23帖のゆとりあるLDK ○ LDには足元から暖まる床暖房 ○ 豊富な収納スペース(WIC、床下収納) 〇 会話が弾む対面式キッチン(食洗機付き) 〇 家族の顔が見えるリビングイン階段 ○ トイレ2箇所(1・2F) ○ カースペース2台駐車可能(車種による制限あり) 〇 買物施設が徒歩圏内にございます 〇 周辺に公園が点在する閑静な立地です ■ 担当者より ━━━━━━━━━━・・・・ ※掲載写真は 既存建物解体前2026年4月6日撮影です。 この度は物件詳細画面をご覧いただきありがとうございます。 御客様からのお問い合わせを心よりお待ちしております。
| 所在地 | GoogleMaps |
| 価格 | 5,099万円 |
| 交通 | 西武池袋・豊島線 大泉学園駅 バス7分 大泉風致地区 停歩17分 |
| その他費用 | - |
| 間取り | 3LDK+2S ※S・サービススペースは納戸です |
| 建物面積 | 111.08㎡(約33.6坪) |
| 土地面積 | 130.05㎡(約39.34坪) |
| 築年月 | 2026年08月築(予定) |
| 建物構造 | 木造2階建 |
| 現況 | 未完成 |
| 駐車場 | 有 |
| 土地権利 | 所有権 |
| 地目 | 宅地 |
| 接道状況 | 東側: 約 4m (公道) |
| 建ぺい率 | 60% |
| 容積率 | 100% |
| 用途地域 | 第一種低層住居専用地域 |
| 都市計画 | 市街化区域 |
| 建築確認番号 | 第25UDI1W建14103号 |
| 備考 | 片山・西堀地区地区整備計画区域 |
| 引渡時期 | 相談 |
| 取引態様 | 仲介 |
| 更新日 | 2026年04月06日 |
| 次回更新予定 | 2026年04月20日 |
| 物件番号 | FECBCA12 |
最新のAI技術を活用した相談サービスです。
お客様一人ひとりのニーズに合わせて最適な情報をご提供します。
リハウスAIチャットの詳しい説明はこちら
GoogleMaps
| スーパー | ベルク池田店 約430m(徒歩6分) |
| スーパー | サミットストア大泉学園店 約1150m(徒歩15分) |
| 公園 | 池田五丁目児童遊園 約60m(徒歩1分) |
| 公園 | 栄二丁目ふれあい公園 約690m(徒歩9分) |
| 病院 | 松崎医院 約320m(徒歩4分) |
| 小学校 | 新座市立池田小学校 約600m(徒歩8分) |
| 中学校 | 新座市立第三中学校 約1350m(徒歩17分) |
| その他利便施設1 | ファミリーマート大泉学園通り店 約1150m(徒歩15分) |
| その他利便施設2 | 新座栄郵便局 約830m(徒歩11分) |
0120-58-1131
0120-58-1131
物件の売却をご検討の方は、 はやめの査定依頼がおすすめです!
買い替えをご検討の方はこちら0120-58-1131

