東久留米市浅間町2丁目
西武池袋・豊島線 ひばりヶ丘駅 徒歩16分
2LDK
建物面積:54.54㎡
土地面積:66.47㎡
2026年01月築(予定)
4,490万円



| 物件種別 | 新築戸建 |
| 所在地 | GoogleMaps |
| 交通 | |
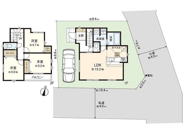
| 間取り | 3LDK |
| 建物面積 | 76.07㎡(約23.01坪) |
| 土地面積 | 95.17㎡(約28.78坪) ※別途私道約33.77㎡有 |
| 築年月 | 2025年11月築 |
返済計画を入力すると毎月のお支払い目安を表示できます
■ 物件名 ━━━━━━━━━━━━━━━・・・・・ ○ 東久留米市神宝町1丁目 新築戸建 ■ 交通 ━━━━━━━━━━━━━━━・・・・・ ○ 西武池袋線「東久留米」駅 徒歩17分 ○ 西武池袋線「東久留米」駅 バス5分 最寄りのバス停まで徒歩7分 ■ おすすめポイント ━━━━━━━━━━━━━━━・・・・・ ○ 敷地面積95.17平米(約28.78坪) ○ 第一種低層住宅専用地区の閑静な住宅街 ○ 小学校などが近くにあり、子育てしやすい環境です。 ○ 南向きにつき陽当たり良好 ○ 家族との会話が弾む対面式キッチン ○ 寛ぎと開放感が彩る約15.3帖のLDK ○ 雨の日にも便利な浴室換気乾燥機 ○ 各階にトイレを設置、ゆとりをもって使用可能 ○ カースペースあり(車種による)
| 所在地 | GoogleMaps |
| 価格 | 4,490万円 |
| 交通 | |
| その他費用 | - |
| 間取り | 3LDK |
| 建物面積 | 76.07㎡(約23.01坪) |
| 土地面積 | 95.17㎡(約28.78坪) ※別途私道約33.77㎡有 |
| 築年月 | 2025年11月築 |
| 建物構造 | 木造2階建 |
| 現況 | 空家 |
| 駐車場 | 有 |
| 土地権利 | 所有権 |
| 地目 | 宅地 |
| 接道状況 | - |
| 建ぺい率 | 40% |
| 容積率 | 80% |
| 用途地域 | 第一種低層住居専用地域 |
| 都市計画 | 市街化区域 |
| 備考 | - |
| 引渡時期 | 相談 |
| 取引態様 | 仲介 |
| 更新日 | 2025年11月28日 |
| 次回更新予定 | 2025年12月12日 |
| 物件番号 | FEPAGAB2 |
最新のAI技術を活用した相談サービスです。
お客様一人ひとりのニーズに合わせて最適な情報をご提供します。
リハウスAIチャットの詳しい説明はこちら
GoogleMaps
| スーパー | 業務スーパー新座石神店 約470m(徒歩6分) |
| スーパー | ヤオコー新座栗原店 約660m(徒歩9分) |
| スーパー | オーケー新座石神店 約900m(徒歩12分) |
| 公園 | 下谷公園 約500m(徒歩7分) |
| 小学校 | 東久留米市立神宝小学校 約460m(徒歩6分) |
| 中学校 | 東久留米市立東中学校 約760m(徒歩10分) |
| その他利便施設1 | サンドラッグ新座石神店 約440m(徒歩6分) |
| その他利便施設2 | ローソンストア100新座栗原一丁目店 約570m(徒歩8分) |
| その他利便施設3 | スーパービバホーム東久留米店 約770m(徒歩10分) |
| その他利便施設4 | 東京ドームスポーツセンター東久留米 約550m(徒歩7分) |
三井不動産リアルティ株式会社
国土交通大臣(15)第777号
0120-40-6831
0120-40-6831
物件の売却をご検討の方は、 はやめの査定依頼がおすすめです!
買い替えをご検討の方はこちら0120-40-6831

