西東京市東町1丁目
西武池袋・豊島線 保谷駅 徒歩8分
3LDK
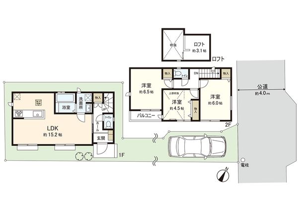
建物面積:75.56㎡
土地面積:99.25㎡
新築
6,390万円



| 物件種別 | 新築戸建 |
| 所在地 | GoogleMaps |
| 交通 | 西武池袋・豊島線 保谷駅 徒歩8分 |
| 間取り | 3LDK |
| 建物面積 | 75.77㎡(約22.92坪) |
| 土地面積 | 99㎡(約29.94坪) |
| 築年月 | 2026年04月築 |
■ 物件名 ━━━━━━━━━━━━━━━・・・・・ ○ 西東京市東町1丁目 新築戸建B号棟 ■ 交通アクセス ━━━━━━━━━━━━━━━・・・・・ ○ 西武池袋線「保谷」駅 徒歩8分 ■ おすすめポイント ━━━━━━━━━━━━━━━・・・・・ ○ 敷地面積99.00平米(約29.94坪) ○ 様々な家族構成に対応できる3LDKの間取り ○ インテリアの映える広々としたLDK約15.2帖 ○ 家族との会話が弾む対面式キッチン ○ 全居室南東向きの明るい住戸 ○ 季節物などの収納にうれしいロフト付物件 ○ 「保谷」駅周辺にはスーパーや商業施設・飲食店が立ち並んでいるため、買物便良好です。 ○ 小学校、公園などが近くにあり、子育てしやすい環境です。 ○ 各階にトイレを設置、ゆとりをもって使用可能 ○ カースペースあり(車種による制限があります)
| 所在地 | GoogleMaps |
| 価格 | 6,390万円 |
| 交通 | 西武池袋・豊島線 保谷駅 徒歩8分 |
| その他費用 | - |
| 間取り | 3LDK |
| 建物面積 | 75.77㎡(約22.92坪) |
| 土地面積 | 99㎡(約29.94坪) |
| 築年月 | 2026年04月築 |
| 建物構造 | 木造2階建 |
| 現況 | 空家 |
| 駐車場 | 有 |
| 土地権利 | 所有権 |
| 地目 | 宅地 |
| 接道状況 | - |
| 建ぺい率 | 40% |
| 容積率 | 80% |
| 用途地域 | 第一種低層住居専用地域 |
| 都市計画 | 市街化区域 |
| 備考 | 土地/99.0平米(路地状部分32%含む) |
| 引渡時期 | 相談 |
| 取引態様 | 仲介 |
| 更新日 | 2026年04月24日 |
| 次回更新予定 | 2026年05月08日 |
| 物件番号 | FEPBGA06 |
最新のAI技術を活用した相談サービスです。
お客様一人ひとりのニーズに合わせて最適な情報をご提供します。
リハウスAIチャットの詳しい説明はこちら
GoogleMaps
| スーパー | ヨークフーズ保谷店 約200m(徒歩3分) |
| スーパー | 西友保谷店 約600m(徒歩8分) |
| スーパー | いなげや保谷駅前店 約680m(徒歩9分) |
| 公園 | 文理台公園 約340m(徒歩5分) |
| 小学校 | 西東京市立東小学校 約420m(徒歩6分) |
| 中学校 | 西東京市立明保中学校 約340m(徒歩5分) |
| その他利便施設1 | セブンイレブン西東京東町1丁目店 約80m(徒歩1分) |
| その他利便施設2 | ファミリーマート保谷駅南口店 約540m(徒歩7分) |
| その他利便施設3 | くすりのダイイチ ソレイユ保谷店 約530m(徒歩7分) |
三井不動産リアルティ株式会社
国土交通大臣(15)第777号
0120-40-6831
0120-40-6831
物件の売却をご検討の方は、 はやめの査定依頼がおすすめです!
買い替えをご検討の方はこちら0120-40-6831

