蕨市塚越7丁目
京浜東北・根岸線 西川口駅 徒歩14分
3SLDK
建物面積:124.56㎡
土地面積:65.05㎡
新築
7,299万円



| 物件種別 | 新築戸建 |
| 所在地 | GoogleMaps |
| 交通 | |
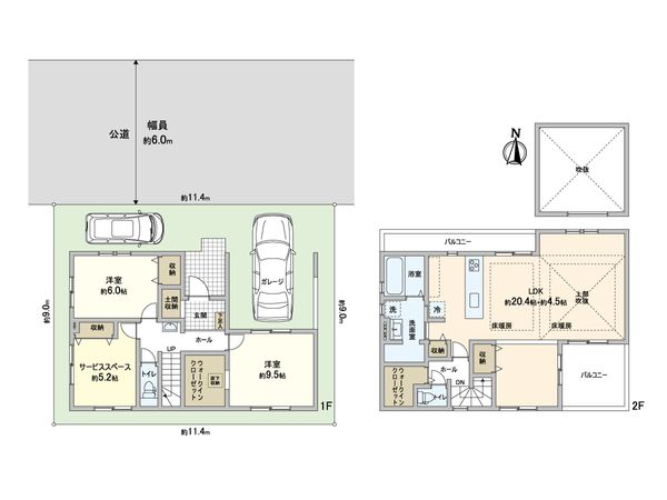
| 間取り | 2SLDK ※S・サービススペースは納戸です |
| 建物面積 | 125.38㎡(約37.92坪) |
| 土地面積 | 102.91㎡(約31.13坪) |
| 築年月 | 2026年02月築 |
返済計画を入力すると毎月のお支払い目安を表示できます
-物件のおすすめポイント- ▼立地 ・埼京線「戸田」駅 徒歩13分 ・埼京線「北戸田」駅 徒歩15分 ▼建物の特徴 ・北側約6.0m公道に面した土地 ・駐車スペース2台分※車種による ▼設備 ・約24帖の広々LDKに床暖房、吹抜け有り ・ウォークインクローゼット等収納豊富な間取り ・家事動線に配慮した間取り設計 ・自転車やベビーカーの収納に便利な土間収納有り ■ご希望の住まい探しをお手伝いします━━━━━・・・ 物件の詳細・ご相談はお気軽にお問い合わせください。
| 所在地 | GoogleMaps |
| 価格 | 7,299万円 |
| 交通 | |
| その他費用 | - |
| 間取り | 2SLDK ※S・サービススペースは納戸です |
| 建物面積 | 125.38㎡(約37.92坪) |
| 土地面積 | 102.91㎡(約31.13坪) |
| 築年月 | 2026年02月築 |
| 建物構造 | 木造2階建 |
| 現況 | 空家 |
| 駐車場 | 有 |
| 土地権利 | 所有権 |
| 地目 | 宅地 |
| 接道状況 | - |
| 建ぺい率 | 60% |
| 容積率 | 200% |
| 用途地域 | 第一種住居地域 |
| 都市計画 | 市街化区域 |
| 備考 | 準防火地域/区画整理事業区域/地区計画区域 上記建物面積のうち1F車庫面積14.90㎡含む |
| 引渡時期 | 相談 |
| 取引態様 | 仲介 |
| 更新日 | 2026年03月14日 |
| 次回更新予定 | 2026年03月28日 |
| 物件番号 | FLEBGA3C |
最新のAI技術を活用した相談サービスです。
お客様一人ひとりのニーズに合わせて最適な情報をご提供します。
リハウスAIチャットの詳しい説明はこちら
GoogleMaps
| スーパー | Olympic戸田店 約850m(徒歩11分) |
| 小学校 | 西小学校 約800m(徒歩10分) |
| 中学校 | 第二中学校 約640m(徒歩8分) |
0120-959-531
0120-959-531
物件の売却をご検討の方は、 はやめの査定依頼がおすすめです!
買い替えをご検討の方はこちら0120-959-531

