北区滝野川3丁目
都営三田線 西巣鴨駅 徒歩8分
2SLDK
建物面積:102.45㎡
土地面積:55.45㎡
2026年05月築(予定)
8,780万円



| 物件種別 | 新築戸建 |
| 所在地 | GoogleMaps |
| 交通 | |
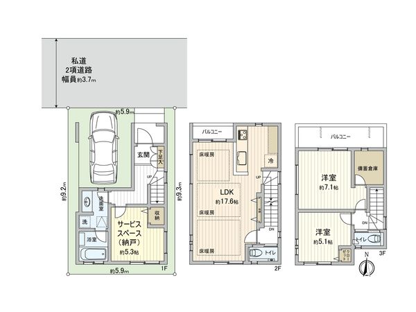
| 間取り | 2SLDK ※S・サービススペースは納戸です |
| 建物面積 | 101.9㎡(約30.82坪) |
| 土地面積 | 55.45㎡(約16.77坪) ※別途私道約11.92㎡有 |
| 築年月 | 2026年05月築(予定) |
■ アクセス ━━━━━━━━━━━━・・・・・ ●5路線6駅利用可能 ○ 都営三田線「西巣鴨」駅 徒歩8分 「新板橋」駅 徒歩11分 ○ 都電荒川線「西ケ原四丁目」駅 徒歩10分 ○ JR埼京線「板橋」駅 徒歩14分 ○ JR京浜東北線「王子」駅 徒歩16分 ■ おすすめポイント ━━━━━━━━━━・・・・・ ○ 創建ホームズ(株)設計・施工 ○ 2SLDK+W・I・C ○ 駐車場スペースあり(車種による) ○ 2階リビング部分に床暖房敷設 ○ 1階、2階の2箇所にトイレ ○ 「耐震等級2」・「断熱性能等級5」取得 《充実した住宅保証制度》 ○ 建物初期保証 20年 ○ 住宅設備機器保証 10年
| 所在地 | GoogleMaps |
| 価格 | 8,780万円 |
| 交通 | |
| その他費用 | - |
| 間取り | 2SLDK ※S・サービススペースは納戸です |
| 建物面積 | 101.9㎡(約30.82坪) |
| 土地面積 | 55.45㎡(約16.77坪) ※別途私道約11.92㎡有 |
| 築年月 | 2026年05月築(予定) |
| 建物構造 | 木造3階建 |
| 現況 | 未完成 |
| 駐車場 | 有 |
| 土地権利 | 所有権 |
| 地目 | 宅地 |
| 接道状況 | 北側: 約 3.7m (私道) |
| 建ぺい率 | 60% |
| 容積率 | 200%(前面道路の容積率制限により容積率は160%に制限されます。) |
| 用途地域 | 第一種中高層住居専用地域 |
| 都市計画 | 市街化区域 |
| 建築確認番号 | 第HPAー25ー14080-1号 |
| 備考 | 建物延床面積には備蓄倉庫3.92平米、車庫面積部分11.31平米を含みます。 |
| 引渡時期 | 2026年05月下旬以降 |
| 取引態様 | 仲介 |
| 更新日 | 2026年04月20日 |
| 次回更新予定 | 2026年05月04日 |
| 物件番号 | FLGBGA2A |
最新のAI技術を活用した相談サービスです。
お客様一人ひとりのニーズに合わせて最適な情報をご提供します。
リハウスAIチャットの詳しい説明はこちら
GoogleMaps
| スーパー | コープみらいミニコープ滝野川店 約80m(徒歩1分) |
| 公園 | 滝野川三丁目公園 約50m(徒歩1分) |
| 病院 | 滝野川病院 約440m(徒歩6分) |
| その他利便施設1 | 西巣鴨駅(都営地下鉄 三田線) 約460m(徒歩6分) |
| その他利便施設2 | セブンイレブン北区滝野川3丁目店 約280m(徒歩4分) |
| その他利便施設3 | どらっぐぱぱす紅葉橋通り店 約240m(徒歩3分) |
| その他利便施設4 | 滝野川三郵便局 約390m(徒歩5分) |
三井不動産リアルティ株式会社
国土交通大臣(15)第777号
0120-995-431
0120-995-431
物件の売却をご検討の方は、 はやめの査定依頼がおすすめです!
買い替えをご検討の方はこちら0120-995-431

