申し訳ございません。お探しの物件は、掲載が終了したか、成約済みになった可能性があります。
あなたがお探しの条件に合う物件をピックアップさせていただきました。お気軽に担当店舗へお問い合わせください。
新築戸建
4,680万円
入間郡三芳町大字藤久保
東武東上線 鶴瀬駅 徒歩18分
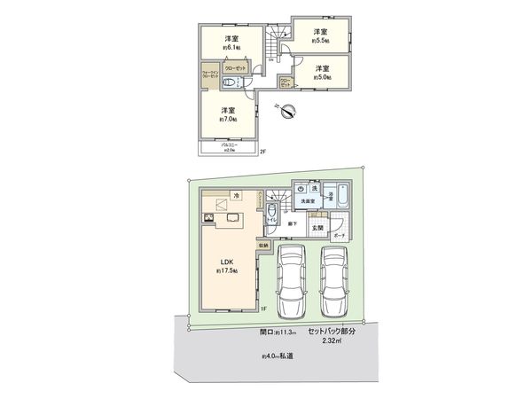
3LDK
建物面積:80㎡
土地面積:100.76㎡
2026年06月築(予定)
4,098万円
東武東上線 鶴瀬駅 徒歩14分
建物面積:104.75㎡
土地面積:100.51㎡
新築
4,380万円
東武東上線 鶴瀬駅 徒歩13分
4LDK
建物面積:115.17㎡
土地面積:70.21㎡
2026年04月築(予定)
3,880万円
入間郡三芳町大字北永井
東武東上線 鶴瀬駅 徒歩25分
建物面積:99.98㎡
土地面積:122.71㎡
2026年07月築(予定)
建物面積:99.36㎡
3,690万円
建物面積:100.9㎡
土地面積:122.52㎡
土地面積:122.53㎡
3,780万円
土地面積:122.64㎡
営業時間
10:00~18:00
定休日
毎週火曜日・水曜日
住所
メールアドレス
パスワード
お気に入り物件で価格変更・オープンハウス情報の更新があります