申し訳ございません。お探しの物件は、掲載が終了したか、成約済みになった可能性があります。
あなたがお探しの条件に合う物件をピックアップさせていただきました。お気軽に担当店舗へお問い合わせください。
新築戸建
4,998万円
ふじみ野市川崎2丁目
東武東上線 上福岡駅 徒歩21分
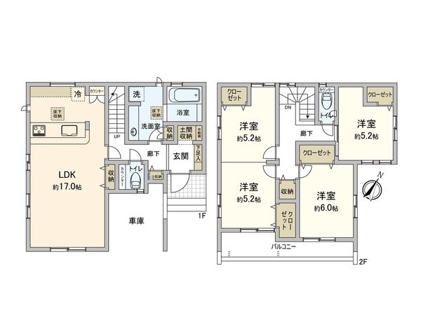
3LDK
建物面積:100.81㎡
土地面積:111.53㎡
新築
4,398万円
建物面積:109.71㎡
土地面積:109.71㎡
4,598万円
建物面積:102.26㎡
土地面積:159.36㎡
4,798万円
建物面積:105.78㎡
土地面積:110.17㎡
4,198万円
建物面積:101.84㎡
土地面積:157.3㎡
4,380万円
ふじみ野市駒西2丁目
東武東上線 ふじみ野駅 徒歩12分
3SLDK
建物面積:103.47㎡
土地面積:135.29㎡
2026年09月築(予定)
4,399万円
ふじみ野市苗間
東武東上線 ふじみ野駅 徒歩17分
4LDK
建物面積:85.7㎡
土地面積:107.77㎡
2026年08月築(予定)
ふじみ野市元福岡1丁目
東武東上線 上福岡駅 徒歩18分
建物面積:103.09㎡
土地面積:124.39㎡
2026年07月築(予定)
営業時間
10:00~18:00
定休日
毎週火曜日・水曜日
住所
メールアドレス
パスワード
お気に入り物件で価格変更・オープンハウス情報の更新があります