長久手市丁子田
名古屋市東山線 藤が丘駅 バス15分 市が洞 停歩7分
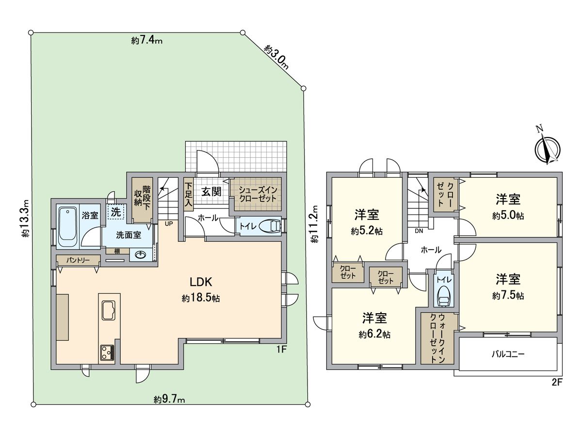
4LDK
建物面積:101.44㎡
土地面積:129.23㎡
2026年05月築(予定)
5,190万円



| 物件種別 | 新築戸建 |
| 所在地 | GoogleMaps |
| 交通 | |
| 間取り | 4LDK |
| 建物面積 | 101.84㎡(約30.8坪) |
| 土地面積 | 127.25㎡(約38.49坪) |
| 築年月 | 2026年05月築(予定) |
-物件のおすすめポイント- ▼立地 ・藤が丘駅バス15分「市が洞」停徒歩7分 ・リニモ長久手古戦場駅バス20分「丁子田」停徒歩2分 ▼建物の特徴 ・2026年5月築の長期優良住宅、省令準耐火構造 ・耐震等級3取得で安心の構造設計 ・北・東の角地で開放感ある立地 ・全室照明器具付き、1階防犯ガラス採用(一部除く) ▼設備 ・ICカード開錠、1階リビングに電動シャッター、宅配POS設置 ・ビルトイン食洗機、浴室乾燥機、温水洗浄便座 ・キッチン一体型浄水水栓、TVモニター付インターホン ・EVコンセント、建物保証最長35年 ▼周辺環境 ・マックスバリュ長久手店徒歩約2分(約130m) ・たんぽぽクリニック徒歩約4分(約250m) ・片平二丁目公園徒歩約4分(約260m) ・複数のドラッグストアやコンビニが徒歩圏内 ■ ご希望の住まい探しをお手伝いします ━━━━━・・・ 物件の詳細・ご相談はお気軽にお問い合わせください。
| 所在地 | GoogleMaps |
| 価格 | 5,190万円 |
| 交通 | |
| その他費用 | - |
| 間取り | 4LDK |
| 建物面積 | 101.84㎡(約30.8坪) |
| 土地面積 | 127.25㎡(約38.49坪) |
| 築年月 | 2026年05月築(予定) |
| 建物構造 | 木造2階建 |
| 現況 | 未完成 |
| 駐車場 | - |
| 土地権利 | 所有権 |
| 地目 | 宅地 |
| 接道状況 | 東側: 約 25.4m (公道)、北側: 約 6m (公道) |
| 建ぺい率 | 60% |
| 容積率 | 150% |
| 用途地域 | 第一種低層住居専用地域 |
| 都市計画 | 市街化区域 |
| 建築確認番号 | 第KS125-0420-55600号 |
| 備考 | - |
| 引渡時期 | 2026年05月下旬以降 |
| 取引態様 | 仲介 |
| 更新日 | 2026年04月30日 |
| 次回更新予定 | 2026年05月14日 |
| 物件番号 | FLXAWA10 |
最新のAI技術を活用した相談サービスです。
お客様一人ひとりのニーズに合わせて最適な情報をご提供します。
リハウスAIチャットの詳しい説明はこちら
GoogleMaps
| スーパー | マックスバリュ長久手店 約130m(徒歩2分) |
| スーパー | ピアゴパワー長久手南店 約650m(徒歩9分) |
| 公園 | 片平二丁目公園 約260m(徒歩4分) |
| 病院 | たんぽぽクリニック 約250m(徒歩4分) |
| 小学校 | 市が洞小学校 約890m(徒歩12分) |
| 中学校 | 南中学校 約1850m(徒歩24分) |
| その他利便施設1 | ココカラファイン 竹の山店 約440m(徒歩6分) |
| その他利便施設2 | セブン-イレブン 日進岩崎町竹ノ山店 約360m(徒歩5分) |
| その他利便施設3 | ドラッグスギヤマ ユータウンながくて店 約640m(徒歩8分) |
0120-984-731
0120-984-731
物件の売却をご検討の方は、 はやめの査定依頼がおすすめです!
買い替えをご検討の方はこちら0120-984-731

