西東京市住吉町5丁目
西武池袋・豊島線 保谷駅 徒歩15分
5LDK
建物面積:103.5㎡
土地面積:129.88㎡
2026年04月築(予定)
5,999万円



| 物件種別 | 新築戸建 |
| 所在地 | GoogleMaps |
| 交通 | |
| 間取り | 4LDK |
| 建物面積 | 105.78㎡(約31.99坪) |
| 土地面積 | 113.01㎡(約34.18坪) |
| 築年月 | 2026年04月築(予定) |
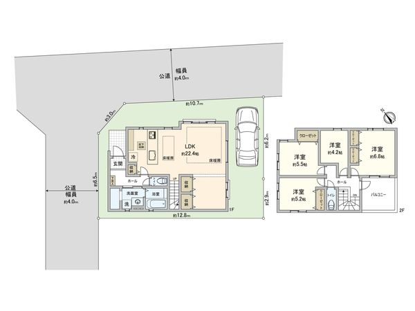
■物件名━━━━━━━━━━━━━━━・・・・・ 西東京市西原町4丁目 新築戸建 ■所在・交通━━━━━━━━━━━━━━━・・・・・ ○西武新宿線「田無」駅 徒歩21分 ■おすすめポイント━━━━━━━━━━━━━━━・・・・・ ○令和8年4月下旬完成予定 〇4LDK+カースペース(車種による) ○開放感のある角地 《設備》 ○ TVモニター付きインターホン ○ 洗面化粧台 ○ システムバス ○ 食洗器あり ○ システムキッチン・浄水器付き ○ 床暖房(リビングダイニング) ○ 浴室換気乾燥機 ○ システムバス ○ 床下収納(キッチン部分) 《間取り》 ○ LDK 約22.4帖 ○ 主寝室 約6.8帖 ○ 浴室に窓あり ○ 床下収納あり
| 所在地 | GoogleMaps |
| 価格 | 5,999万円 |
| 交通 | |
| その他費用 | - |
| 間取り | 4LDK |
| 建物面積 | 105.78㎡(約31.99坪) |
| 土地面積 | 113.01㎡(約34.18坪) |
| 築年月 | 2026年04月築(予定) |
| 建物構造 | 木造2階建 |
| 現況 | 未完成 |
| 駐車場 | 有 |
| 土地権利 | 所有権 |
| 地目 | 宅地 |
| 接道状況 | 北東側: 約 4m (公道)、北西側: 約 4m (公道) |
| 建ぺい率 | 50% |
| 容積率 | 150% |
| 用途地域 | 第一種中高層住居専用地域 |
| 都市計画 | 市街化区域 |
| 建築確認番号 | 第25UDI1W建09710号 |
| 備考 | - |
| 引渡時期 | 2026年05月下旬以降 |
| 取引態様 | 仲介 |
| 更新日 | 2026年04月13日 |
| 次回更新予定 | 2026年04月27日 |
| 物件番号 | FM7BGA08 |
最新のAI技術を活用した相談サービスです。
お客様一人ひとりのニーズに合わせて最適な情報をご提供します。
リハウスAIチャットの詳しい説明はこちら
三井不動産リアルティ株式会社
国土交通大臣(15)第777号
0120-558-321
0120-558-321
物件の売却をご検討の方は、 はやめの査定依頼がおすすめです!
買い替えをご検討の方はこちら0120-558-321

