東大和市清水4丁目
西武多摩湖線 武蔵大和駅 徒歩11分
3LDK
建物面積:75.72㎡
土地面積:94.86㎡
2026年02月築(予定)
3,290万円



| 物件種別 | 新築戸建 |
| 所在地 | GoogleMaps |
| 交通 | |
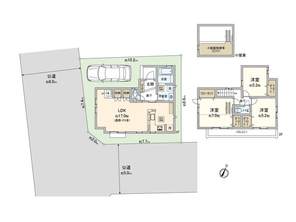
| 間取り | 3LDK |
| 建物面積 | 83.21㎡(約25.17坪) |
| 土地面積 | 83.7㎡(約25.31坪) |
| 築年月 | 2025年06月築 |
返済計画を入力すると毎月のお支払い目安を表示できます
-物件のおすすめポイント- ▼立地 ・西武多摩湖線「武蔵大和」駅 徒歩13分 ・西武多摩湖線 八坂駅 徒歩29分 ▼おすすめポイント ・南西角地の公道につき日当たり良好 ・長期優良住宅、ZEH水準 ・主寝室約7帖、ロフト約3帖 ・食洗器・浴室乾燥機付き ・広々とした約17帖のLDK ・ロフト付きで収納豊富 ・リビング階段で開放感のある空間 ・カースペースあり ■ ご希望の住まい探しをお手伝いします ━━━━━・・・ 物件の詳細・ご相談はお気軽にお問い合わせください
| 所在地 | GoogleMaps |
| 価格 | 3,290万円 |
| 交通 | |
| その他費用 | - |
| 間取り | 3LDK |
| 建物面積 | 83.21㎡(約25.17坪) |
| 土地面積 | 83.7㎡(約25.31坪) |
| 築年月 | 2025年06月築 |
| 建物構造 | 木造2階建 |
| 現況 | 空家 |
| 駐車場 | - |
| 土地権利 | 所有権 |
| 地目 | 宅地 |
| 接道状況 | - |
| 建ぺい率 | 60% |
| 容積率 | 100% |
| 用途地域 | 第一種低層住居専用地域 |
| 都市計画 | 市街化区域 |
| 備考 | 網戸・カーテンレール・TVアンテナ等は付随しておりません。 追加変更工事をご希望の場合は、本物件引渡後の対応となります。 |
| 引渡時期 | 相談 |
| 取引態様 | 仲介 |
| 更新日 | 2026年01月26日 |
| 次回更新予定 | 2026年02月09日 |
| 物件番号 | FM9AGB6B |
最新のAI技術を活用した相談サービスです。
お客様一人ひとりのニーズに合わせて最適な情報をご提供します。
リハウスAIチャットの詳しい説明はこちら
GoogleMaps
| スーパー | 業務スーパー西武東大和店 約710m(徒歩9分) |
| 病院 | 東大和病院 約2070m(徒歩26分) |
| 小学校 | 東大和市立第四小学校 約710m(徒歩9分) |
| 中学校 | 東大和市立第一中学校 約2080m(徒歩26分) |
| その他利便施設1 | ローソン東大和清水五丁目店 約100m(徒歩2分) |
| その他利便施設2 | ココカラファイン東大和清水店 約620m(徒歩8分) |
| その他利便施設3 | ニトリ東大和店 約930m(徒歩12分) |
0120-00-4131
0120-00-4131
物件の売却をご検討の方は、 はやめの査定依頼がおすすめです!
買い替えをご検討の方はこちら0120-00-4131

