東村山市萩山町1丁目
西武多摩湖線 萩山駅 徒歩6分
1SLDK
建物面積:109.06㎡
土地面積:125.33㎡
新築
5,990万円



| 物件種別 | 新築戸建 |
| 所在地 | GoogleMaps |
| 交通 | |
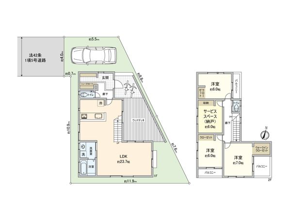
| 間取り | 4LDK |
| 建物面積 | 110.96㎡(約33.56坪) |
| 土地面積 | 129.68㎡(約39.22坪) |
| 築年月 | 2026年05月築(予定) |
返済計画を入力すると毎月のお支払い目安を表示できます
-物件のおすすめポイント- ▼立地 ・ 西武多摩湖線/西武拝島線「萩山」駅徒歩7分 ・ 西武新宿線/西武拝島線「小平」駅徒歩11分 ▼建物の特徴 ・ 2駅3路線利用可で各方面へのアクセス良好 ・ 駐車場1台分あり(車種による) ▼お部屋の特徴 ・ 全居室6帖以上の110平米超の4LDK ・ コミュニケーションを育むリビング階段 ・ LDKは約23帖とゆったりくつろげる空間 ▼設備 ・ 家事の負担を軽減できる食器洗浄機付対面式システムキッチン ・ 雨の日の洗濯にも便利な浴室換気乾燥機付 ・ アウトドア用品等の収納にも便利なシューズインクローク付 ・ 留守中でも荷物を受け取れる宅配ボックスあり ・ アウトドアリビング空間を楽しめるウッドデッキ付 ▼周辺環境 ・スーパーあまいけ萩山店まで徒歩9分(約710m) ・ローソンストア100東村山萩山町店まで徒歩8分(約630m) ・東村山市立萩山小学校まで徒歩8分(約590m) ■ ご希望の住まい探しをお手伝いします ━━━━━・・・ 物件の詳細・ご相談はお気軽にお問い合わせください。
| 所在地 | GoogleMaps |
| 価格 | 5,990万円 |
| 交通 | |
| その他費用 | - |
| 間取り | 4LDK |
| 建物面積 | 110.96㎡(約33.56坪) |
| 土地面積 | 129.68㎡(約39.22坪) |
| 築年月 | 2026年05月築(予定) |
| 建物構造 | 木造2階建 |
| 現況 | 未完成 |
| 駐車場 | - |
| 土地権利 | 所有権 |
| 地目 | 山林 |
| 接道状況 | - |
| 建ぺい率 | 50% |
| 容積率 | 100% |
| 用途地域 | 第一種低層住居専用地域 |
| 都市計画 | 市街化区域 |
| 建築確認番号 | 第25UDI1T建03699号 |
| 備考 | - |
| 引渡時期 | 相談 |
| 取引態様 | 仲介 |
| 更新日 | 2026年03月05日 |
| 次回更新予定 | 2026年03月19日 |
| 物件番号 | FM9BGA0E |
最新のAI技術を活用した相談サービスです。
お客様一人ひとりのニーズに合わせて最適な情報をご提供します。
リハウスAIチャットの詳しい説明はこちら
GoogleMaps
| スーパー | スーパーあまいけ萩山駅前店 約710m(徒歩9分) |
| 小学校 | 東村山市立萩山小学校 約590m(徒歩8分) |
| 中学校 | 東村山市立東村山第三中学校 約1280m(徒歩16分) |
| その他利便施設1 | 萩山駅(西武拝島線) 約560m(徒歩7分) |
| その他利便施設2 | 小平駅(西武新宿線) 約850m(徒歩11分) |
| その他利便施設3 | ローソンストア100東村山萩山町店 約630m(徒歩8分) |
0120-00-4131
0120-00-4131
物件の売却をご検討の方は、 はやめの査定依頼がおすすめです!
買い替えをご検討の方はこちら0120-00-4131

