東村山市青葉町1丁目
西武池袋・豊島線 清瀬駅 バス11分 青葉町一丁目 停歩6分
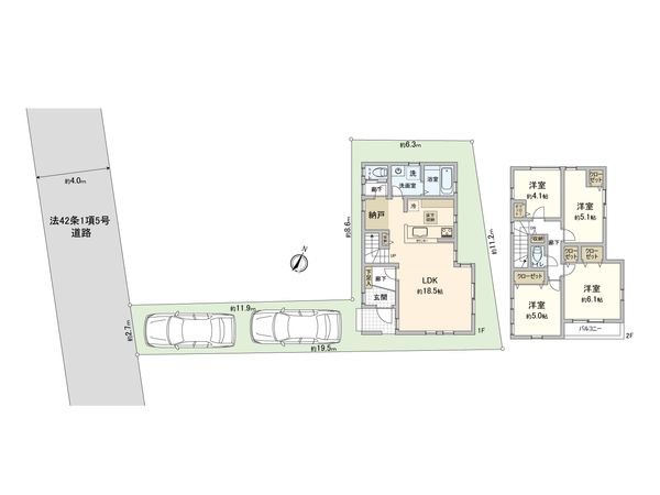
4LDK
建物面積:100.19㎡
土地面積:122.8㎡
2026年03月築(予定)
4,999万円



| 物件種別 | 新築戸建 |
| 所在地 | GoogleMaps |
| 交通 | |
| 間取り | 4LDK |
| 建物面積 | 92.74㎡(約28.05坪) |
| 土地面積 | 112.76㎡(約34.1坪) |
| 築年月 | 2026年06月築(予定) |
返済計画を入力すると毎月のお支払い目安を表示できます
-物件のおすすめポイント- ▼立地 ・ JR武蔵野線「新秋津」駅徒歩16分 ・ 西武池袋線「秋津」駅徒歩17分 ▼建物の特徴 ・ 駐車スペース2台有(※車種による) ▼お部屋の特徴 ・ コミュニケーションを育むリビング階段がある4LDK ・ LDKは約18帖とゆったりくつろげる空間 ▼設備 ・ 家事の負担を軽減できる食器洗浄機付システムキッチン ・ 雨の日の洗濯にも便利な浴室換気乾燥機付 ・ 広々1坪タイプのゆったり浴室ユニット ・ 床下収納や全居室にクローゼットがあり、収納豊富 ・ トイレには快適な温水洗浄便座付 ▼周辺環境 ・ ビッグ・エー 東村山青葉店まで徒歩7分(約500m) ・ セブンイレブン東村山秋津2丁目店まで徒歩8分(約580m) ・ 島忠ホームズ東村山店まで徒歩10分(約750m) ・ 東村山市立青葉小学校まで徒歩9分(約715m) ・ 東村山市立東村山第六中学校まで徒歩6分(約340m) ■ ご希望の住まい探しをお手伝いします ━━━━━・・・ 物件の詳細・ご相談はお気軽にお問い合わせください。
| 所在地 | GoogleMaps |
| 価格 | 4,999万円 |
| 交通 | |
| その他費用 | - |
| 間取り | 4LDK |
| 建物面積 | 92.74㎡(約28.05坪) |
| 土地面積 | 112.76㎡(約34.1坪) |
| 築年月 | 2026年06月築(予定) |
| 建物構造 | 木造2階建 |
| 現況 | 未完成 |
| 駐車場 | 有 |
| 土地権利 | 所有権 |
| 地目 | 宅地 |
| 接道状況 | - |
| 建ぺい率 | 50% |
| 容積率 | 100% |
| 用途地域 | 第一種低層住居専用地域 |
| 都市計画 | 市街化区域 |
| 建築確認番号 | 第25UDI1W建11270号 |
| 備考 | - |
| 引渡時期 | 相談 |
| 取引態様 | 仲介 |
| 更新日 | 2026年03月05日 |
| 次回更新予定 | 2026年03月19日 |
| 物件番号 | FM9BGA1C |
最新のAI技術を活用した相談サービスです。
お客様一人ひとりのニーズに合わせて最適な情報をご提供します。
リハウスAIチャットの詳しい説明はこちら
GoogleMaps
| スーパー | ビッグ・エー 東村山青葉店 約500m(徒歩7分) |
| 公園 | 星ヶ丘公園 約160m(徒歩2分) |
| 病院 | 地方独立行政法人東京都立病院機構東京都立多摩北部医療センター 約1250m(徒歩16分) |
| 小学校 | 東村山市立青葉小学校 約715m(徒歩9分) |
| 中学校 | 東村山市立東村山第六中学校 約340m(徒歩5分) |
| その他利便施設1 | 新秋津駅(JR東日本 武蔵野線) 約1260m(徒歩16分) |
| その他利便施設2 | 秋津駅(西武池袋線) 約1310m(徒歩17分) |
| その他利便施設3 | 島忠ホームズ東村山店(スーパーロピア・ダイソー・西松屋併設) 約750m(徒歩10分) |
| その他利便施設4 | セブンイレブン東村山秋津2丁目店 約580m(徒歩8分) |
| その他利便施設5 | マツモトキヨシ東村山秋津店 約715m(徒歩9分) |
0120-00-4131
0120-00-4131
物件の売却をご検討の方は、 はやめの査定依頼がおすすめです!
買い替えをご検討の方はこちら0120-00-4131

