東大和市狭山5丁目
西武多摩湖線 武蔵大和駅 徒歩14分
4LDK
建物面積:94.36㎡
土地面積:120.49㎡
2026年08月築(予定)
4,380万円



| 物件種別 | 新築戸建 |
| 所在地 | GoogleMaps |
| 交通 | |
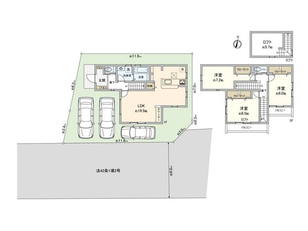
| 間取り | 3LDK |
| 建物面積 | 95.58㎡(約28.91坪) |
| 土地面積 | 120.39㎡(約36.41坪) |
| 築年月 | 2026年07月築(予定) |
-物件のおすすめポイント- ▼立地 ・ 西武多摩湖線「武蔵大和」駅徒歩10分 ・ 西武新宿線・国分寺線「東村山」駅バス13分 「狭山三丁目」停歩3分 ・ 西武拝島線「東大和市」駅バス16分 「狭山三丁目」停歩4分 ▼建物の特徴 ・ 駐車スペース3台有(※車種による) ・ 住宅性能表示W取得(設計+建設) ▼お部屋の特徴 ・ 固定階段付きのロフトで季節物の入替もスムーズに ・リビングにスタディースペースとして利用できるカウンターを設置 ▼設備 ・ 浄水機付対面式システムカウンターキッチン ・ 雨の日の洗濯にも便利な浴室換気乾燥機付 ・ キッチン横にパントリー収納あり ・ 来客時に便利なTVモニター付インターホン ▼周辺環境 ・ セブンイレブン東大和高木1丁目店 徒歩4分(約275m) ・ 業務スーパー西武東大和店 徒歩10分(約770m) ・ 東大和市立第四小学校 徒歩7分(約500m) ■ ご希望の住まい探しをお手伝いします ━━━━━・・・ 物件の詳細・ご相談はお気軽にお問い合わせください。
| 所在地 | GoogleMaps |
| 価格 | 4,380万円 |
| 交通 | |
| その他費用 | - |
| 間取り | 3LDK |
| 建物面積 | 95.58㎡(約28.91坪) |
| 土地面積 | 120.39㎡(約36.41坪) |
| 築年月 | 2026年07月築(予定) |
| 建物構造 | 木造2階建 |
| 現況 | 未完成 |
| 駐車場 | - |
| 土地権利 | 所有権 |
| 地目 | 宅地 |
| 接道状況 | - |
| 建ぺい率 | 40% |
| 容積率 | 80% |
| 用途地域 | 第一種低層住居専用地域 |
| 都市計画 | 市街化区域 |
| 建築確認番号 | 第25UDI1W建11972号 |
| 備考 | - |
| 引渡時期 | 相談 |
| 取引態様 | 仲介 |
| 更新日 | 2026年05月09日 |
| 次回更新予定 | 2026年05月23日 |
| 物件番号 | FM9BGA3C |
最新のAI技術を活用した相談サービスです。
お客様一人ひとりのニーズに合わせて最適な情報をご提供します。
リハウスAIチャットの詳しい説明はこちら
GoogleMaps
| スーパー | 業務スーパー西武東大和店 約770m(徒歩10分) |
| 公園 | 清水公園 約440m(徒歩6分) |
| 小学校 | 東大和市立第四小学校 約500m(徒歩7分) |
| 中学校 | 東大和市立第一中学校 約1470m(徒歩19分) |
| その他利便施設1 | 武蔵大和駅(西武多摩湖線) 約750m(徒歩10分) |
| その他利便施設2 | セブンイレブン東大和高木1丁目店 約275m(徒歩4分) |
| その他利便施設3 | ココカラファイン東大和清水店 約800m(徒歩10分) |
| その他利便施設4 | 武蔵大和駅前郵便局 約600m(徒歩8分) |
0120-00-4131
0120-00-4131
物件の売却をご検討の方は、 はやめの査定依頼がおすすめです!
買い替えをご検討の方はこちら0120-00-4131

