さいたま市中央区本町東5丁目
埼京線 北与野駅 徒歩14分
3SLDK
建物面積:107.84㎡
土地面積:53.01㎡
2026年07月築(予定)
5,880万円



| 物件種別 | 新築戸建 |
| 所在地 | GoogleMaps |
| 交通 | 埼京線 北与野駅 徒歩14分 |
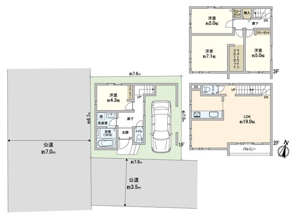
| 間取り | 4LDK |
| 建物面積 | 111.37㎡(約33.68坪) |
| 土地面積 | 53.01㎡(約16.03坪) |
| 築年月 | 2026年07月築(予定) |
-物件のおすすめポイント- ▼立地 ・JR埼京線 北与野駅 徒歩14分 ▼建物の特徴 ・木造3階建て新築戸建 ・南西、南東角地につき陽当り・通風良好 ・駐車スペース1台分有※車種による ▼お部屋の特徴 ・約19帖のゆとりのあるLDK ・家族との会話が弾む対面式キッチン ▼設備 ・食器洗浄乾燥機 ・システムキッチン ・シャワー付洗面化粧台 ・温水洗浄便座 ・ウォークインクローゼット ▼周辺環境 ・イオンモール与野まで徒歩6分圏内(約480m) ■ ご希望の住まい探しをお手伝いします ━━━━━・・・ 物件の詳細・ご相談はお気軽にお問い合わせください。
| 所在地 | GoogleMaps |
| 価格 | 5,880万円 |
| 交通 | 埼京線 北与野駅 徒歩14分 |
| その他費用 | - |
| 間取り | 4LDK |
| 建物面積 | 111.37㎡(約33.68坪) |
| 土地面積 | 53.01㎡(約16.03坪) |
| 築年月 | 2026年07月築(予定) |
| 建物構造 | 木造3階建 |
| 現況 | 未完成 |
| 駐車場 | 有 |
| 土地権利 | 所有権 |
| 地目 | 宅地 |
| 接道状況 | 南西側: 約 7m (公道)、南東側: 約 3.5m (公道) |
| 建ぺい率 | 80% |
| 容積率 | 200% |
| 用途地域 | 近隣商業地域 |
| 都市計画 | 市街化区域 |
| 建築確認番号 | 第25UDI1W建14060号 |
| 備考 | 上記建物面積のうち1F車庫面積15.31㎡含む |
| 引渡時期 | 2026年08月下旬以降 |
| 取引態様 | 仲介 |
| 更新日 | 2026年04月30日 |
| 次回更新予定 | 2026年05月14日 |
| 物件番号 | FMSBDA0B |
最新のAI技術を活用した相談サービスです。
お客様一人ひとりのニーズに合わせて最適な情報をご提供します。
リハウスAIチャットの詳しい説明はこちら
GoogleMaps
| スーパー | マルエツ与野店 約730m(徒歩10分) |
| 小学校 | 与野八幡小学校 約500m(徒歩7分) |
| 中学校 | 与野西中学校 約1280m(徒歩16分) |
| その他利便施設1 | イオンモール与野 約480m(徒歩6分) |
| その他利便施設2 | ファミリーマートさいたま本町西店 約200m(徒歩3分) |
| その他利便施設3 | セブンイレブンさいたま本町西5丁目店 約330m(徒歩5分) |
| その他利便施設4 | ドラッグストアコスモス与野店 約400m(徒歩5分) |
三井不動産リアルティ株式会社
国土交通大臣(15)第777号
0120-993-612
0120-993-612
物件の売却をご検討の方は、 はやめの査定依頼がおすすめです!
買い替えをご検討の方はこちら0120-993-612

