さいたま市浦和区上木崎7丁目
京浜東北・根岸線 与野駅 徒歩18分
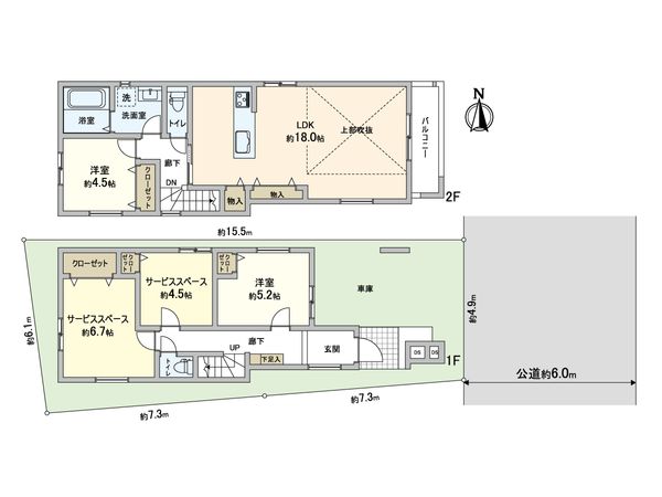
2LDK+S×2
建物面積:110.85㎡
土地面積:83.05㎡
2026年09月築(予定)
5,580万円



| 物件種別 | 新築戸建 |
| 所在地 | GoogleMaps |
| 交通 | 京浜東北・根岸線 与野駅 徒歩18分 |
| 間取り | 2LDK+S×2 |
| 建物面積 | 111㎡(約33.57坪) |
| 土地面積 | 82.94㎡(約25.08坪) |
| 築年月 | 2026年09月築(予定) |
-物件のおすすめポイント- ▼立地 ・JR京浜東北線「与野」駅徒歩18分 ▼建物の特徴 ・2階建・2LDK+S×2タイプの新築一戸建住宅 ・令和8年9月中旬完成予定 ・前面道路約6.0mにつき開放感あり ・車を雨や日差しから守る車庫付 ▼お部屋の特徴 ・約18.0帖の広々としたLDK ・上部吹き抜けのある開放感あふれるリビングダイニング ・三面採光により明るくゆとりのあるLDKの空間を演出 ・各居室に収納があり収納豊富 ・家族との会話が弾む対面式キッチン ・使い勝手の良い納戸付 ▼周辺環境 ・徒歩5分圏内にスーパー・ドラッグストアがございます ■ ご希望の住まい探しをお手伝いします ━━━━━・・・ 物件の詳細・ご相談はお気軽にお問い合わせください。
| 所在地 | GoogleMaps |
| 価格 | 5,580万円 |
| 交通 | 京浜東北・根岸線 与野駅 徒歩18分 |
| その他費用 | - |
| 間取り | 2LDK+S×2 |
| 建物面積 | 111㎡(約33.57坪) |
| 土地面積 | 82.94㎡(約25.08坪) |
| 築年月 | 2026年09月築(予定) |
| 建物構造 | 木造2階建 |
| 現況 | 未完成 |
| 駐車場 | - |
| 土地権利 | 所有権 |
| 地目 | 宅地 |
| 接道状況 | 東側: 約 6m (公道) |
| 建ぺい率 | 60% |
| 容積率 | 200% |
| 用途地域 | 第一種中高層住居専用地域 |
| 都市計画 | 市街化区域 |
| 建築確認番号 | 第BNV確済26ー109号 |
| 備考 | ※前面道路にはガス配管及びガスの引込管はありません。 ※建物面積には車庫面積12.42平米を含みます。 |
| 引渡時期 | 2026年10月中旬以降 |
| 取引態様 | 仲介 |
| 更新日 | 2026年04月25日 |
| 次回更新予定 | 2026年05月09日 |
| 物件番号 | FMSBDA13 |
最新のAI技術を活用した相談サービスです。
お客様一人ひとりのニーズに合わせて最適な情報をご提供します。
リハウスAIチャットの詳しい説明はこちら
GoogleMaps
| スーパー | コープ上木崎店 約290m(徒歩4分) |
| スーパー | ヤオコー浦和上木崎店 約700m(徒歩9分) |
| 公園 | 皇山第二公園 約90m(徒歩2分) |
| 小学校 | さいたま市立上木崎小学校 約1130m(徒歩15分) |
| 中学校 | さいたま市立大原中学校 約710m(徒歩9分) |
| その他利便施設1 | ウエルシア浦和上木崎店 約400m(徒歩5分) |
| その他利便施設2 | セブンイレブンさいたま北袋店 約750m(徒歩10分) |
三井不動産リアルティ株式会社
国土交通大臣(15)第777号
0120-993-612
0120-993-612
物件の売却をご検討の方は、 はやめの査定依頼がおすすめです!
買い替えをご検討の方はこちら0120-993-612

