練馬区桜台6丁目
東京メトロ副都心線 氷川台駅 徒歩8分
3LDK
建物面積:97.86㎡
土地面積:89.74㎡
2025年12月築(予定)
8,990万円



| 物件種別 | 新築戸建 |
| 所在地 | GoogleMaps |
| 交通 | |
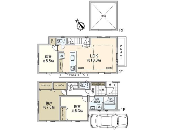
| 間取り | 2SLDK ※S・サービススペースは納戸です |
| 建物面積 | 85.04㎡(約25.72坪) |
| 土地面積 | 85.31㎡(約25.8坪) |
| 築年月 | 2025年09月築 |
返済計画を入力すると毎月のお支払い目安を表示できます
~南東バルコニーにつき陽当り良好、全居室2面採光設計の2SLDK~ ~3駅3路線利用でき、通勤通学に便利~ <物件概要> ■ 完成 … 令和7年9月 建物面積85.04平米 ■ 間取り … 2LDK+サービススペース +カースペース(車種による) ■ 床暖房(リビングダイニング部分) ■ キッチン … 対面式システムキッチン、食洗機 <おすすめポイント> ■ 駐車場あり(車種による) ■ 低層エリアの閑静な住宅街 ■ 公園、小・中学校が近く子育てしやすい環境 ■ 約18帖のLDKは吹抜け・天井勾配を配し、 陽当たり・通風良好 ■ プライバシーに配慮された2Fリビング ■ 全居室収納 ■ ご家族やお客様との会話も楽しめる対面式キッチン ■ 空気が乾燥しにくく、足元から暖かい床暖房 ■ 足をのばしてゆったりと疲れを癒す 1坪タイプのユニットバス ■ 収納や趣味の空間として多目的に使える 約7.3帖のサービススペース ■ コンビニ徒歩4分 <担当者より> ■ 資金計画やローンのシミュレーション、その他 不動産購入に関するご相談ございましたら 何なりとお申しつけください。 担当のスタッフが分かりやすく丁寧にご対応致します。 ■ 周囲の住環境も合わせてぜひ一度ご覧ください。 ■ お問い合わせ心よりお待ち申し上げております。
室内を内覧しているように物件を見学することができます。
| 所在地 | GoogleMaps |
| 価格 | 8,990万円 |
| 交通 | |
| その他費用 | - |
| 間取り | 2SLDK ※S・サービススペースは納戸です |
| 建物面積 | 85.04㎡(約25.72坪) |
| 土地面積 | 85.31㎡(約25.8坪) |
| 築年月 | 2025年09月築 |
| 建物構造 | 木造2階建 |
| 現況 | 空家 |
| 駐車場 | 有 |
| 土地権利 | 所有権 |
| 地目 | 宅地 |
| 接道状況 | 南東側: 約 4m (公道) |
| 建ぺい率 | 50% |
| 容積率 | 100% |
| 用途地域 | 第一種低層住居専用地域 |
| 都市計画 | 市街化区域 |
| 備考 | ※建ぺい率は60%となります(準耐火緩和による) |
| 引渡時期 | 即時 |
| 取引態様 | 仲介 |
| 更新日 | 2025年12月12日 |
| 次回更新予定 | 2025年12月26日 |
| 物件番号 | FP1AGA79 |
最新のAI技術を活用した相談サービスです。
お客様一人ひとりのニーズに合わせて最適な情報をご提供します。
リハウスAIチャットの詳しい説明はこちら
GoogleMaps
| スーパー | サミットストア氷川台駅前店 約690m(徒歩9分) |
| スーパー | スーパーあまいけ練馬店 約780m(徒歩10分) |
| 公園 | 区立しいのみ公園 約140m(徒歩2分) |
| 公園 | 区立三丁目森公園 約180m(徒歩3分) |
| 小学校 | 練馬区立開進第二小学校 約480m(徒歩6分) |
| 中学校 | 練馬区立開進第三中学校 約520m(徒歩7分) |
| その他利便施設1 | ファミリーマート練馬桜台店 約280m(徒歩4分) |
| その他利便施設2 | トモズEmio桜台店 約790m(徒歩10分) |
| その他利便施設3 | ウエルシア練馬桜台店 約840m(徒歩11分) |
0120-41-3131
0120-41-3131
物件の売却をご検討の方は、 はやめの査定依頼がおすすめです!
買い替えをご検討の方はこちら0120-41-3131

