目黒区鷹番1丁目
東急東横線 学芸大学駅 徒歩6分
3SLDK
建物面積:160.67㎡
土地面積:93.13㎡
2026年06月築(予定)
32,000万円



| 物件種別 | 新築戸建 |
| 所在地 | GoogleMaps |
| 交通 | |
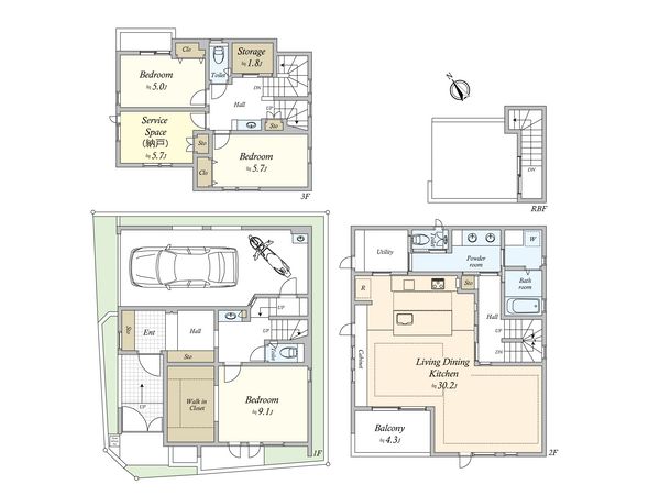
| 間取り | 3SLDK ※S・サービススペースは納戸です |
| 建物面積 | 204.99㎡(約62坪) |
| 土地面積 | 116.49㎡(約35.23坪) ※別途私道約3.11㎡有 |
| 築年月 | 2026年01月築 |
■おすすめポイント ・・・ 〇耐震等級2取得、建物面積200平米超の新築戸建 〇南西・北西角地 〇南西側道路は一部緑道となっているため、日当たり良好 〇LDKは約30.2帖とゆったりくつろげる空間(床暖房敷設) 〇リビングに120インチの電動プロジェクター完備 〇窓付きで換気しやすく明るい浴室 〇浴槽はゆとりのある1620サイズ 〇ホテルライクな2ボウルタイプの洗面化粧台 〇豊富な収納スペース *ウォークインクローゼット(約9.1帖洋室) *ストレージ(3階ホール) *各居室収納あり *ユーティリティスペース(2階部分) *一面収納キャビネット(LDK) 等 〇全室エアコン完備 〇住まいに合わせて選び抜かれた家具家電付き販売住戸 〇食器洗い乾燥機付きシステムキッチン 〇約8.4帖のルーフバルコニー 〇電動シャッター付きビルトイン車庫あり(車種による) ■アクセス ・・・ 〇東急東横線「学芸大学」駅 徒歩14分 〇東急東横線「都立大学」駅 徒歩16分 〇東急田園都市線「駒沢大学」駅 徒歩19分
| 所在地 | GoogleMaps |
| 価格 | 32,000万円 |
| 交通 | |
| その他費用 | - |
| 間取り | 3SLDK ※S・サービススペースは納戸です |
| 建物面積 | 204.99㎡(約62坪) |
| 土地面積 | 116.49㎡(約35.23坪) ※別途私道約3.11㎡有 |
| 築年月 | 2026年01月築 |
| 建物構造 | 木造3階建 |
| 現況 | 空家 |
| 駐車場 | 有 |
| 土地権利 | 所有権 |
| 地目 | 宅地 |
| 接道状況 | - |
| 建ぺい率 | 60% |
| 容積率 | 150% |
| 用途地域 | 第一種低層住居専用地域 |
| 都市計画 | 市街化区域 |
| 備考 | - |
| 引渡時期 | 相談 |
| 取引態様 | 仲介 |
| 更新日 | 2026年04月16日 |
| 次回更新予定 | 2026年04月30日 |
| 物件番号 | FP7BGA2C |
最新のAI技術を活用した相談サービスです。
お客様一人ひとりのニーズに合わせて最適な情報をご提供します。
リハウスAIチャットの詳しい説明はこちら
GoogleMaps
| スーパー | 東急ストア駒沢通り野沢店 約320m(徒歩4分) |
| 公園 | 南原公園 約310m(徒歩4分) |
| 病院 | 独立行政法人国立病院機構東京医療センター 約970m(徒歩13分) |
| 病院 | 柿の木坂内科皮膚科クリニック 約320m(徒歩4分) |
| 小学校 | 目黒区立東根小学校 約610m(徒歩8分) |
| 中学校 | 目黒区立第十中学校 約720m(徒歩9分) |
| その他利便施設1 | イオンスタイル碑文谷 約1260m(徒歩16分) |
| その他利便施設2 | ローソン柿の木坂二丁目店 約220m(徒歩3分) |
| その他利便施設3 | ツルハドラッグ柿の木坂店 約390m(徒歩5分) |
| その他利便施設4 | 目黒八雲四郵便局 約610m(徒歩8分) |
0120-925-431
0120-925-431
物件の売却をご検討の方は、 はやめの査定依頼がおすすめです!
買い替えをご検討の方はこちら0120-925-431

