豊島区長崎5丁目
西武池袋・豊島線 東長崎駅 徒歩5分
2SLDK
建物面積:95.78㎡
土地面積:73.35㎡
2025年12月築(予定)
9,480万円



| 物件種別 | 新築戸建 |
| 所在地 | GoogleMaps |
| 交通 | |
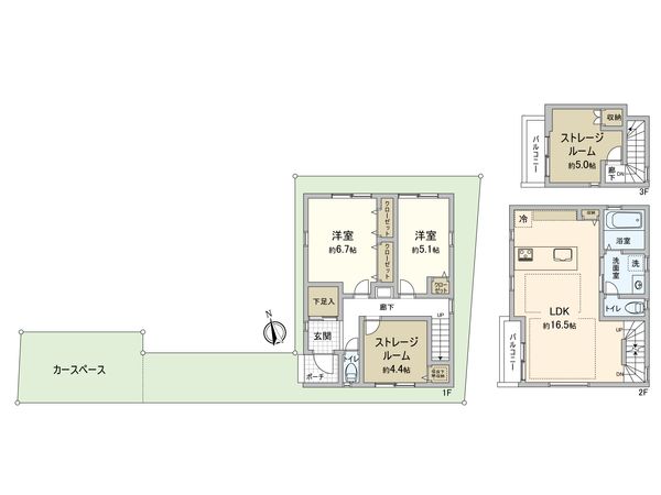
| 間取り | 2SLDK ※S・サービススペースは納戸です |
| 建物面積 | 92.94㎡(約28.11坪) |
| 土地面積 | 91.53㎡(約27.68坪) |
| 築年月 | 2025年12月築(予定) |
返済計画を入力すると毎月のお支払い目安を表示できます
-物件のおすすめポイント- ▼立地 ・西武池袋・豊島線「東長崎」駅 徒歩5分 ・東京メトロ有楽町線「千川」駅 徒歩12分 ・東京メトロ副都心線「千川」駅 徒歩12分 ▼建物の特徴 ・木造2階建/2LDK+S×2 ・敷地面積91.53平米 ・建物面積92.94平米 ・2025年12月完成予定 ▼お部屋の特徴 ・広々としたLDKは約16.5帖 ・対面式キッチン ・1階・2階にトイレ有 ・トイレ・洗面室・浴室に窓有 ■ ご希望の住まい探しをお手伝いします ━━━━━・・・ 物件の詳細・ご相談はお気軽にお問い合わせください。
| 所在地 | GoogleMaps |
| 価格 | 9,480万円 |
| 交通 | |
| その他費用 | - |
| 間取り | 2SLDK ※S・サービススペースは納戸です |
| 建物面積 | 92.94㎡(約28.11坪) |
| 土地面積 | 91.53㎡(約27.68坪) |
| 築年月 | 2025年12月築(予定) |
| 建物構造 | 木造2階建 |
| 現況 | 未完成 |
| 駐車場 | - |
| 土地権利 | 所有権 |
| 地目 | 宅地 |
| 接道状況 | - |
| 建ぺい率 | 60% |
| 容積率 | 150% |
| 用途地域 | 第一種低層住居専用地域 |
| 都市計画 | 市街化区域 |
| 建築確認番号 | 第25UDI1W建02275号 |
| 備考 | - |
| 引渡時期 | 2025年12月下旬以降 |
| 取引態様 | 仲介 |
| 更新日 | 2025年12月02日 |
| 次回更新予定 | 2025年12月16日 |
| 物件番号 | FP8AGAF3 |
最新のAI技術を活用した相談サービスです。
お客様一人ひとりのニーズに合わせて最適な情報をご提供します。
リハウスAIチャットの詳しい説明はこちら
0120-313-720
0120-313-720
物件の売却をご検討の方は、 はやめの査定依頼がおすすめです!
買い替えをご検討の方はこちら0120-313-720

