川越市今成2丁目
東武東上線 川越市駅 徒歩23分
4LDK
建物面積:104.27㎡
土地面積:145.58㎡
新築
4,180万円



| 物件種別 | 新築戸建 |
| 所在地 | GoogleMaps |
| 交通 | 東武東上線 新河岸駅 徒歩4分 |
| 間取り | 3LDK |
| 建物面積 | 101.44㎡(約30.68坪) |
| 土地面積 | 100.03㎡(約30.25坪) |
| 築年月 | 2026年01月築 |
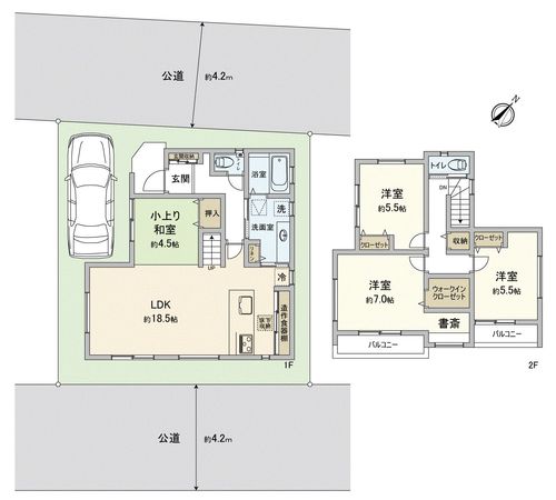
■おすすめポイント━━━━━━━━━━━━━━━・・・・・ ○東武東上線「新河岸」駅徒歩4分の閑静な住宅街 ○駐車スペース1台分(車種による) ○土地面積約100平米、南東側・北西側公道に面し、陽当り・通風良好 ○建物面積約101平米の3LDK、木造ガルバリウム鋼板葺き2階建 ○約18.5帖LDK、家族を見守るリビング階段 ○リビング脇に約4.5帖の小上がり和室 ○キッチンに大型造作カップボード ■設備・仕様━━━━━━━━━━━━━━━・・・・・ ○会話の弾むフルフラットキッチン、食器洗浄機・浄水器付き ○1坪タイプのユニットバス、浴室暖房換気乾燥機付き ○大型洗面化粧台 ○ウォークインクローゼットほか全居室に収納スペース ○全居室LowーE複層ガラス・高断熱サッシ、シャッター雨戸 ○玄関ドア スマートキー対応 ○トイレ2ヶ所、節水型ローシルエットトイレ ○全扉オートクローズ機能 ○TVモニター付きインターフォン ほか
| 所在地 | GoogleMaps |
| 価格 | 4,180万円 |
| 交通 | 東武東上線 新河岸駅 徒歩4分 |
| その他費用 | - |
| 間取り | 3LDK |
| 建物面積 | 101.44㎡(約30.68坪) |
| 土地面積 | 100.03㎡(約30.25坪) |
| 築年月 | 2026年01月築 |
| 建物構造 | 木造2階建 |
| 現況 | 空家 |
| 駐車場 | 有 |
| 土地権利 | 所有権 |
| 地目 | 宅地 |
| 接道状況 | 南東側: 約 4.2m (公道)、北西側: 約 4.2m (公道) |
| 建ぺい率 | 60% |
| 容積率 | 200%(前面道路の幅員により168%に制限されます。) |
| 用途地域 | 第一種住居地域 |
| 都市計画 | 市街化区域 |
| 備考 | - |
| 引渡時期 | 即時 |
| 取引態様 | 仲介 |
| 更新日 | 2026年04月17日 |
| 次回更新予定 | 2026年05月01日 |
| 物件番号 | FR4BGA59 |
最新のAI技術を活用した相談サービスです。
お客様一人ひとりのニーズに合わせて最適な情報をご提供します。
リハウスAIチャットの詳しい説明はこちら
GoogleMaps
| スーパー | 東武ストア新河岸店 約380m(徒歩5分) |
| スーパー | コモディイイダ新河岸店 約570m(徒歩8分) |
| 公園 | 砂氷川神社公園 約530m(徒歩7分) |
| 病院 | 竹田クリニック 約890m(徒歩12分) |
| 小学校 | 高階小学校 約780m(徒歩10分) |
| 中学校 | 砂中学校 約1110m(徒歩14分) |
| その他利便施設1 | 東武東上線「新河岸」駅東口 約310m(徒歩4分) |
| その他利便施設2 | ドラッグストアコスモス新河岸店 約320m(徒歩4分) |
| その他利便施設3 | セブンイレブン新河岸駅東口店 約230m(徒歩3分) |
| その他利便施設4 | ファミリーマート新河岸駅前店 約300m(徒歩4分) |
三井不動産リアルティ株式会社
国土交通大臣(15)第777号
0120-71-3131
0120-71-3131
物件の売却をご検討の方は、 はやめの査定依頼がおすすめです!
買い替えをご検討の方はこちら0120-71-3131

