昭島市田中町2丁目
青梅線 昭島駅 徒歩18分
4LDK
建物面積:97.71㎡
土地面積:124.06㎡
2026年06月築(予定)
5,230万円



| 物件種別 | 新築戸建 |
| 所在地 | GoogleMaps |
| 交通 | 青梅線 東中神駅 徒歩3分 |
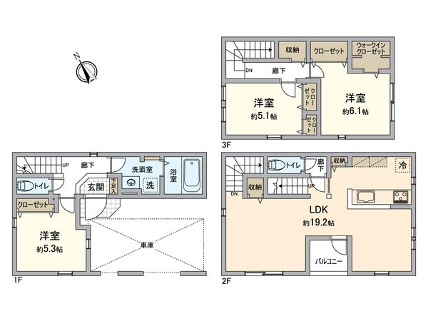
| 間取り | 3LDK |
| 建物面積 | 112.86㎡(約34.14坪) |
| 土地面積 | 60.46㎡(約18.28坪) |
| 築年月 | 2026年08月築(予定) |
-物件のおすすめポイント- ▼立地 ・JR青梅線「東中神」駅 徒歩3分の好立地 ▼建物の特徴 ・敷地面積60.46平米(約18.28坪) ・建物面積112.86平米(約34.14坪)の3階建3LDK ※車庫部分11.38平米(3.44坪)含む ・駐車スペース1台可能(車種による制限あり) ▼お部屋の特徴 ・人目を気にせず過ごせる、自然と家族が集まる2階リビング ・ゆったりと過ごせる約19.2帖のLDK ▼設備 ・浴室暖房乾燥機 ・システムキッチン ・食器洗浄乾燥機 ・キッチンハンドシャワー付浄水栓 ・TVモニター付インターホン ・宅配ボックス ・全室ペアガラスサッシ ▼周辺環境 ・徒歩圏内にスーパー・コンビニ等生活利便施設あり ■ ご希望の住まい探しをお手伝いします━━━━━・・・ 物件の詳細・ご相談はお気軽にお問い合わせください。
| 所在地 | GoogleMaps |
| 価格 | 5,230万円 |
| 交通 | 青梅線 東中神駅 徒歩3分 |
| その他費用 | - |
| 間取り | 3LDK |
| 建物面積 | 112.86㎡(約34.14坪) |
| 土地面積 | 60.46㎡(約18.28坪) |
| 築年月 | 2026年08月築(予定) |
| 建物構造 | 木造3階建 |
| 現況 | 未完成 |
| 駐車場 | 有 |
| 土地権利 | 所有権 |
| 地目 | 宅地 |
| 接道状況 | 南東側: 約 16m (公道) |
| 建ぺい率 | 60% |
| 容積率 | 200% |
| 用途地域 | 第一種中高層住居専用地域 |
| 都市計画 | 市街化区域 |
| 建築確認番号 | 第SJK-KX255651380号 |
| 備考 | ※建物面積112.86平米(約34.14坪)には車庫部分11.38平米(3.44坪)含まれております。 |
| 引渡時期 | 2026年10月下旬以降 |
| 取引態様 | 仲介 |
| 更新日 | 2026年05月21日 |
| 次回更新予定 | 2026年06月04日 |
| 物件番号 | FR6BDA02 |
最新のAI技術を活用した相談サービスです。
お客様一人ひとりのニーズに合わせて最適な情報をご提供します。
リハウスAIチャットの詳しい説明はこちら
GoogleMaps
| スーパー | マルフジ東中神店 約350m(徒歩5分) |
| 公園 | 八清公園 約380m(徒歩5分) |
| 病院 | 榮田医院 約150m(徒歩2分) |
| 小学校 | 昭島市立富士見丘小学校 約310m(徒歩4分) |
| 中学校 | 昭島市立昭和中学校 約430m(徒歩6分) |
| その他利便施設1 | ファミリーマート東中神駅前店 約290m(徒歩4分) |
| その他利便施設2 | 昭島玉川郵便局 約310m(徒歩4分) |
0120-231-314
0120-231-314
物件の売却をご検討の方は、 はやめの査定依頼がおすすめです!
買い替えをご検討の方はこちら0120-231-314

