横浜市青葉区あざみ野4丁目
東急田園都市線 たまプラーザ駅 徒歩15分
3LDK
建物面積:99.64㎡
土地面積:125.21㎡
2026年01月築(予定)
10,880万円



| 物件種別 | 新築戸建 |
| 所在地 | GoogleMaps |
| 交通 | |
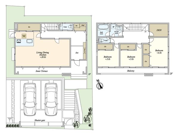
| 間取り | 3SLDK ※S・サービススペースは納戸です |
| 建物面積 | 132.5㎡(約40.08坪) |
| 土地面積 | 191.61㎡(約57.96坪) |
| 築年月 | 2026年01月築(予定) |
返済計画を入力すると毎月のお支払い目安を表示できます
■アクセス ━━━━━━━━━━━━━━━・・・・・ 〇 東急田園都市線『江田』駅 徒歩12分 〇 東急田園都市線『市が尾』駅 徒歩12分 ■おすすめポイント ━━━━━━━━━━━━・・・・・ 〇 令和8年1月完成予定 〇 南西側公道に約12m接道につき日当たり良好 〇 土地面積:191.61平米 〇 建物面積:132.50平米 〇 間取りは3SLDK+カースペース2台分有り(車種による) 〇 ゲートシャッタ―ガレージ― 〇 約20.8帖の広々としたLDK 〇 LDにはTES式床暖房 〇 1階掃き出し窓には電動シャッター有 〇 24時間安心のホームセキュリティ 〇 リビングから続くインナーテラス 〇 使い勝手の良い対面システムキッチン 〇 キッチンにはビルトイン食洗機・ガラストップコンロ 〇 浴室は浴室換気乾燥機付 〇 トイレはTOTOのウォシュレット 〇 テレビモニター付きインターフォン 〇 宅配ボックス 〇 近隣に公園あり 〇 第一種低層住居専用地域につき、閑静な住宅街
| 所在地 | GoogleMaps |
| 価格 | 10,880万円 |
| 交通 | |
| その他費用 | - |
| 間取り | 3SLDK ※S・サービススペースは納戸です |
| 建物面積 | 132.5㎡(約40.08坪) |
| 土地面積 | 191.61㎡(約57.96坪) |
| 築年月 | 2026年01月築(予定) |
| 建物構造 | 木造2階建 |
| 現況 | 未完成 |
| 駐車場 | 有 |
| 土地権利 | 所有権 |
| 地目 | 宅地 |
| 接道状況 | 南西側: 約 12m (公道) |
| 建ぺい率 | 40% |
| 容積率 | 80% |
| 用途地域 | 第一種低層住居専用地域 |
| 都市計画 | 市街化区域 |
| 建築確認番号 | 第2025SBC-確00610H号 |
| 備考 | - |
| 引渡時期 | 相談 |
| 取引態様 | 仲介 |
| 更新日 | 2025年12月13日 |
| 次回更新予定 | 2025年12月27日 |
| 物件番号 | FSEAGA45 |
最新のAI技術を活用した相談サービスです。
お客様一人ひとりのニーズに合わせて最適な情報をご提供します。
リハウスAIチャットの詳しい説明はこちら
GoogleMaps
| スーパー | ハーモス荏田 約760m(徒歩10分) |
| 公園 | 袖振公園 約260m(徒歩4分) |
| 病院 | キノメディッククリニック市ヶ尾 約400m(徒歩5分) |
| 小学校 | 横浜市立荏田西小学校 約590m(徒歩8分) |
| 中学校 | 横浜市立市ケ尾中学校 約850m(徒歩11分) |
| その他利便施設1 | JPローソン青葉郵便局店 約320m(徒歩4分) |
三井不動産リアルティ株式会社
国土交通大臣(15)第777号
0120-907-431
0120-907-431
物件の売却をご検討の方は、 はやめの査定依頼がおすすめです!
買い替えをご検討の方はこちら0120-907-431

