広島市西区井口鈴が台3丁目
広島電鉄宮島線 修大協創中高前駅 徒歩9分
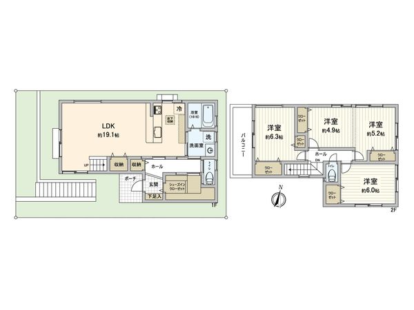
4LDK
建物面積:135.12㎡
土地面積:109.2㎡
新築
4,580万円



| 物件種別 | 新築戸建 |
| 所在地 | GoogleMaps |
| 交通 | |
| 間取り | 4LDK |
| 建物面積 | 135.12㎡(約40.87坪) |
| 土地面積 | 109.2㎡(約33.03坪) |
| 築年月 | 2026年02月築 |
■おすすめポイント━━━━━━━━━━━━━━━・・・・・ 〇 2026年2月完成のオール電化新築戸建 〇 約19.1帖のゆったりとしたLDK 〇 堀込車庫は並列2台駐車可能(車種によります) 〇 柔軟に間取り変更な4LDK 〇 家族との会話が弾む対面式キッチン 〇 ゆったりと入れる1坪タイプのお風呂 〇 シューズインクローゼット等収納充実 〇 コンビニ(約520m)やスーパー(約560m)まで近く、買い物便利
| 所在地 | GoogleMaps |
| 価格 | 4,580万円 |
| 交通 | |
| その他費用 | - |
| 間取り | 4LDK |
| 建物面積 | 135.12㎡(約40.87坪) |
| 土地面積 | 109.2㎡(約33.03坪) |
| 築年月 | 2026年02月築 |
| 建物構造 | 木造2階建 |
| 現況 | 空家 |
| 駐車場 | - |
| 土地権利 | 所有権 |
| 地目 | 宅地 |
| 接道状況 | 西側: 約 5.1m (公道) |
| 建ぺい率 | 50% |
| 容積率 | 100% |
| 用途地域 | 第一種低層住居専用地域 |
| 都市計画 | 市街化区域 |
| 備考 | 上記建物面積のうち地下車庫面積31.62㎡含む |
| 引渡時期 | 即時 |
| 取引態様 | 仲介 |
| 更新日 | 2026年05月14日 |
| 次回更新予定 | 2026年05月28日 |
| 物件番号 | FV2ASA03 |
最新のAI技術を活用した相談サービスです。
お客様一人ひとりのニーズに合わせて最適な情報をご提供します。
リハウスAIチャットの詳しい説明はこちら
GoogleMaps
| スーパー | スパーク鈴が峰店 約560m(徒歩7分) |
| 公園 | 鈴が台第一公園 約300m(徒歩4分) |
| 小学校 | 広島市立井口小学校 約1040m(徒歩13分) |
| 中学校 | 広島市立井口中学校 約1600m(徒歩20分) |
| その他利便施設1 | セブンイレブン広島井口4丁目店 約520m(徒歩7分) |
| その他利便施設2 | 広島井口西郵便局 約500m(徒歩7分) |
三井不動産リアルティ中国株式会社
国土交通大臣(7)第5169号
0120-321-756
0120-321-756
物件の売却をご検討の方は、 はやめの査定依頼がおすすめです!
買い替えをご検討の方はこちら0120-321-756

