藤沢市下土棚
小田急電鉄江ノ島線 長後駅 バス11分 山谷 停歩2分
3SLDK
建物面積:105.57㎡
土地面積:112.37㎡
新築
4,580万円



| 物件種別 | 新築戸建 |
| 所在地 | GoogleMaps |
| 交通 | 小田急電鉄江ノ島線 長後駅 バス11分 山谷 停歩2分 |
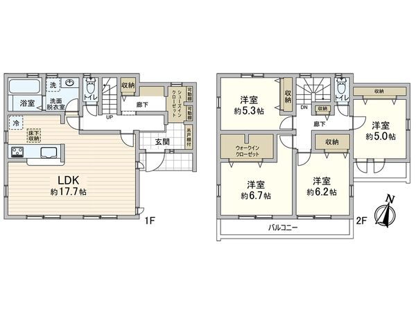
| 間取り | 4LDK |
| 建物面積 | 105.58㎡(約31.93坪) |
| 土地面積 | 145.31㎡(約43.95坪) ※路地状敷地部分約32㎡含む ※但し高圧電線路下面積有 (約9.63㎡) |
| 築年月 | 2026年01月築 |
-物件のおすすめポイント- ▼立地 ・コンビニまで徒歩2分(約150m) ▼物件の特徴 ・南東向きバルコニーで陽当たり良好 ・2部屋から行き来できるワイドバルコニー ・ゆったりとしたLDKは広々約17.7帖 ・家族の会話が弾む対面式キッチン ・1Fに水回り設備を集中設計し、家事動線良好 ・ウォークインクローゼットをはじめとした、収納豊富な間取り ・全居室収納あり ・駐車スペース1台分(車種による) ▼設備 ・料理の幅が広がる3口コンロ ・追い焚き機能付き ・防犯に役立つTVモニター付きインターホン ▼周辺環境 ・セブンイレブン藤沢下土棚店 約150m ・ウェルパーク綾瀬上土棚南店 約470m ■ご希望の住まい探しをお手伝いします ━━━━━ ・・・ 物件の詳細・ご相談はお気軽にお問い合わせください。
| 所在地 | GoogleMaps |
| 価格 | 4,580万円 |
| 交通 | 小田急電鉄江ノ島線 長後駅 バス11分 山谷 停歩2分 |
| その他費用 | - |
| 間取り | 4LDK |
| 建物面積 | 105.58㎡(約31.93坪) |
| 土地面積 | 145.31㎡(約43.95坪) ※路地状敷地部分約32㎡含む ※但し高圧電線路下面積有 (約9.63㎡) |
| 築年月 | 2026年01月築 |
| 建物構造 | 木造2階建 |
| 現況 | 空家 |
| 駐車場 | 有 |
| 土地権利 | 所有権 |
| 地目 | 畑 |
| 接道状況 | - |
| 建ぺい率 | 60% |
| 容積率 | 200% |
| 用途地域 | 準工業地域 |
| 都市計画 | 市街化区域 |
| 備考 | ※敷地面積に路地状部分約32平米(うち、地役権設定部分9.63平米)含む ※北部第二(三地区)土地区画整理事業地内 |
| 引渡時期 | 相談 |
| 取引態様 | 仲介 |
| 更新日 | 2026年04月17日 |
| 次回更新予定 | 2026年05月01日 |
| 物件番号 | FWEBBA08 |
最新のAI技術を活用した相談サービスです。
お客様一人ひとりのニーズに合わせて最適な情報をご提供します。
リハウスAIチャットの詳しい説明はこちら
GoogleMaps
| スーパー | いなげや綾瀬上土棚南店 約510m(徒歩7分) |
| 公園 | やぶね地域公園 約710m(徒歩9分) |
| 小学校 | 富士見台小学校 約1600m(徒歩20分) |
| 中学校 | 長後中学校 約1620m(徒歩21分) |
| その他利便施設1 | ウェルパーク綾瀬上土棚南店 約470m(徒歩6分) |
| その他利便施設2 | セブンイレブン藤沢下土棚店 約150m(徒歩2分) |
| その他利便施設3 | Seriaいなげや上土棚店 約540m(徒歩7分) |
0120-072-031
0120-072-031
物件の売却をご検討の方は、 はやめの査定依頼がおすすめです!
買い替えをご検討の方はこちら0120-072-031

