尼崎市東園田町1丁目
阪急神戸線 園田駅 徒歩17分
4LDK
建物面積:106.69㎡
土地面積:135.16㎡
2026年12月築(予定)
5,198万円



| 物件種別 | 新築戸建 |
| 所在地 | GoogleMaps |
| 交通 | 阪急神戸線 園田駅 徒歩17分 |
| 間取り | 4LDK |
| 建物面積 | 96.87㎡(約29.3坪) |
| 土地面積 | 94.92㎡(約28.71坪) |
| 築年月 | 2026年12月築(予定) |
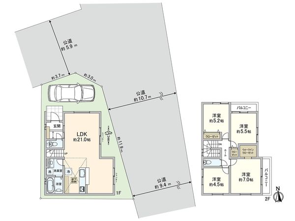
▼令和8年6月完成予定! ○北東角地 ○駐車スペース1台分有(車種制限有) ○建物面積:96.87平米 間取り:4LDK ○LDK:約21.0帖 ○洋室(約7.0帖)にはウォークインクローゼット ○リビング階段 ○1Fと2Fにトイレ有 ▼仕様・設備 ○食器洗浄乾燥機付システムキッチン ○浄水器 ○温水洗浄暖房便座 ○床下収納(キッチン) ○24時間換気
| 所在地 | GoogleMaps |
| 価格 | 5,198万円 |
| 交通 | 阪急神戸線 園田駅 徒歩17分 |
| その他費用 | - |
| 間取り | 4LDK |
| 建物面積 | 96.87㎡(約29.3坪) |
| 土地面積 | 94.92㎡(約28.71坪) |
| 築年月 | 2026年12月築(予定) |
| 建物構造 | 木造2階建 |
| 現況 | 未完成 |
| 駐車場 | 有 |
| 土地権利 | 所有権 |
| 地目 | 宅地 |
| 接道状況 | 東側: 約 9.4m (公道)、北側: 約 5.9m (公道) |
| 建ぺい率 | 60% |
| 容積率 | 200% |
| 用途地域 | 第一種中高層住居専用地域 |
| 都市計画 | 市街化区域 |
| 建築確認番号 | 第KIS125-0420-59016号 |
| 備考 | - |
| 引渡時期 | 2027年01月中旬以降 |
| 取引態様 | 仲介 |
| 更新日 | 2026年05月08日 |
| 次回更新予定 | 2026年05月22日 |
| 物件番号 | FX7AGA58 |
最新のAI技術を活用した相談サービスです。
お客様一人ひとりのニーズに合わせて最適な情報をご提供します。
リハウスAIチャットの詳しい説明はこちら
GoogleMaps
| スーパー | サンディ園田店 約1050m(徒歩14分) |
| スーパー | 業務スーパー園田店 約980m(徒歩13分) |
| 公園 | 猪名川風致公園 約20m(徒歩1分) |
| 病院 | 園田病院 約710m(徒歩9分) |
| 小学校 | 尼崎市立園和小学校 約1110m(徒歩14分) |
| 中学校 | 尼崎市立園田東中学校 約870m(徒歩11分) |
| その他利便施設1 | 園田駅(阪急 神戸本線) 約1360m(徒歩17分) |
| その他利便施設2 | スギ薬局東園田店 約660m(徒歩9分) |
三井不動産リアルティ株式会社
国土交通大臣(15)第777号
0120-678-321
0120-678-321
物件の売却をご検討の方は、 はやめの査定依頼がおすすめです!
買い替えをご検討の方はこちら0120-678-321

