枚方市長尾東町2丁目
3LDK/76.18㎡(約23.04坪)
3,090万円



物件情報
おすすめポイント
周辺情報
取扱店舗
| 物件種別 | 新築戸建 |
| 所在地 | GoogleMaps |
| 交通 | 学研都市線 長尾駅 徒歩12分 |
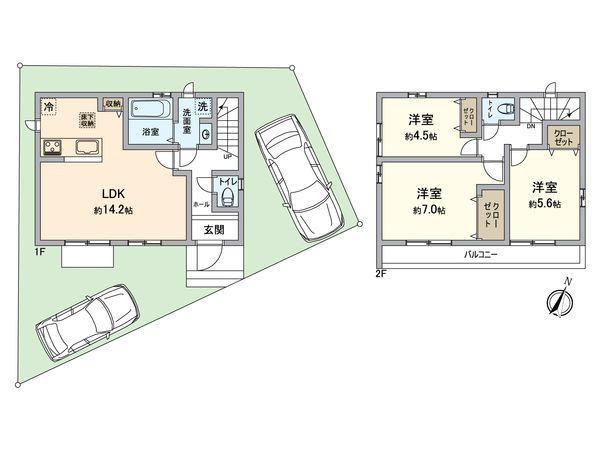
| 間取り | 3LDK |
| 建物面積 | 76.18㎡(約23.04坪) |
| 土地面積 | 96.96㎡(約29.33坪) |
| 築年月 | 2026年07月築(予定) |
この物件情報を共有する
おすすめポイント
特徴
- 前面道路幅員6m以上
〇第一種低層住居専用地域 〇南東向きのため日当たり良好な3LDK 〇JR長尾駅 徒歩12分 〇駐車場スペース2台(1台普通車、1台軽自動車) 〇引渡予定日 2026年9月中旬頃
物件情報
| 所在地 | GoogleMaps |
| 価格 | 3,090万円 |
| 交通 | 学研都市線 長尾駅 徒歩12分 |
| その他費用 | - |
| 間取り | 3LDK |
| 建物面積 | 76.18㎡(約23.04坪) |
| 土地面積 | 96.96㎡(約29.33坪) |
| 築年月 | 2026年07月築(予定) |
| 建物構造 | 木造2階建 |
| 現況 | 未完成 |
| 駐車場 | - |
| 土地権利 | 所有権 |
| 地目 | 宅地 |
| 接道状況 | 南東側: 約 6.7m (公道) |
| 建ぺい率 | 40% |
| 容積率 | 80% |
| 用途地域 | 第一種低層住居専用地域 |
| 都市計画 | 市街化区域 |
| 建築確認番号 | 第KS126-6120-51892号 |
| 備考 | - |
| 引渡時期 | 2026年08月下旬以降 |
| 取引態様 | 仲介 |
| 更新日 | 2026年04月30日 |
| 次回更新予定 | 2026年05月14日 |
| 物件番号 | FXGBDA10 |
この物件のことを
AIに聞いてみませんか?
最新のAI技術を活用した相談サービスです。
お客様一人ひとりのニーズに合わせて最適な情報をご提供します。
リハウスAIチャットの詳しい説明はこちら

周辺情報
GoogleMaps
| スーパー | フレスコ長尾店 約810m(徒歩11分) |
| 小学校 | 枚方市立菅原東小学校 約1720m(徒歩22分) |
| その他利便施設1 | 長尾駅(JR学研都市線) 約880m(徒歩11分) |
| その他利便施設2 | ローソン枚方長尾荒阪1丁目店 約750m(徒歩10分) |
| その他利便施設3 | ドラッグユタカ松井山手店 約1360m(徒歩17分) |
取扱店舗
三井のリハウス 枚方センター
- 営業時間10:00~18:00
- 定休日毎週火曜日・水曜日
0120-321-797
枚方市の物件情報
この物件を見学してみませんか?
この物件についてお問い合わせ
物件・住環境の詳しい情報、購入・ローン相談など、ささいなことでもお気軽にお問い合わせください。三井のリハウス 枚方センター
- 営業時間10:00~18:00
- 定休日毎週火曜日・水曜日
0120-321-797

物件の売却をご検討の方は、 はやめの査定依頼がおすすめです!
買い替えをご検討の方はこちら見学予約
お問い合わせ
0120-321-797
- 営業時間 10:00~18:00
- 定休日 毎週火曜日・水曜日

