神戸市垂水区神陵台7丁目
山陽本線 舞子駅 バス16分 多聞団地口 停歩4分
4LDK
建物面積:98.01㎡
土地面積:134.4㎡
新築
4,190万円



| 物件種別 | 新築戸建 |
| 所在地 | GoogleMaps |
| 交通 | 山陽本線 朝霧駅 バス7分 南多聞台7丁目 停歩7分 |
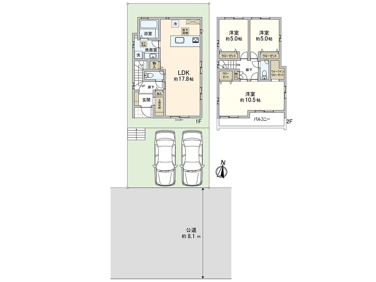
| 間取り | 3LDK |
| 建物面積 | 96.56㎡(約29.2坪) |
| 土地面積 | 112.56㎡(約34.04坪) |
| 築年月 | 2026年04月築 |
■おすすめポイント ━━━━━━━━━━・・・・・ 〇閑静な住宅街につき住環境良好 〇土地112.56平米 〇建物96.56平米 〇南側バルコニーにつき陽当たり良好 〇全居室5帖以上の広々3LDK 〇家族との会話が弾むオープンタイプのカウンターキッチン 〇トイレ2箇所有 〇ベビーカーやアウトドア用品の収納に便利な土間収納 〇2階洋室(約10.5帖)は間仕切り壁で2室に分離可能 〇ウォークインクローゼット有 〇駐車スペース2台有(サイズ制限有) 〇前面道路幅員約8.1メートルにつき駐車も楽々 ■暮らしに便利な設備 ━━━━━━━━━━・・・・・ 〇食器洗乾燥機 〇浴室暖房換気乾燥機 〇TVモニター付きインターホン 〇水栓一体型浄水器 〇Wロック電池錠 〇1220mm幅のワイドな洗面化粧台
| 所在地 | GoogleMaps |
| 価格 | 4,190万円 |
| 交通 | 山陽本線 朝霧駅 バス7分 南多聞台7丁目 停歩7分 |
| その他費用 | - |
| 間取り | 3LDK |
| 建物面積 | 96.56㎡(約29.2坪) |
| 土地面積 | 112.56㎡(約34.04坪) |
| 築年月 | 2026年04月築 |
| 建物構造 | 木造2階建 |
| 現況 | 空家 |
| 駐車場 | - |
| 土地権利 | 所有権 |
| 地目 | 宅地 |
| 接道状況 | 南側: 約 8.1m (公道) |
| 建ぺい率 | 50% |
| 容積率 | 100% |
| 用途地域 | 第一種低層住居専用地域 |
| 都市計画 | 市街化区域 |
| 備考 | - |
| 引渡時期 | 相談 |
| 取引態様 | 仲介 |
| 更新日 | 2026年05月10日 |
| 次回更新予定 | 2026年05月24日 |
| 物件番号 | FY1AWA0F |
最新のAI技術を活用した相談サービスです。
お客様一人ひとりのニーズに合わせて最適な情報をご提供します。
リハウスAIチャットの詳しい説明はこちら
GoogleMaps
| スーパー | KOYO明舞店 約560m(徒歩7分) |
| 公園 | 明舞児童公園 約170m(徒歩3分) |
| 病院 | さかねクリニック 約560m(徒歩7分) |
| 小学校 | 西舞子小学校 約350m(徒歩5分) |
| 中学校 | 舞子中学校 約310m(徒歩4分) |
| その他利便施設1 | キリン堂明舞店 約560m(徒歩7分) |
| その他利便施設2 | ファミリマート明舞団地店 約660m(徒歩9分) |
| その他利便施設3 | コムボックス明舞 約560m(徒歩7分) |
| その他利便施設4 | 明石松が丘郵便局 約560m(徒歩7分) |
三井不動産リアルティ株式会社
国土交通大臣(15)第777号
0120-9332-31
0120-9332-31
物件の売却をご検討の方は、 はやめの査定依頼がおすすめです!
買い替えをご検討の方はこちら0120-9332-31

