西宮市仁川町2丁目
阪急今津線 仁川駅 徒歩6分
3LDK
建物面積:121.09㎡
土地面積:146.16㎡
新築
7,180万円



| 物件種別 | 新築戸建 |
| 所在地 | GoogleMaps |
| 交通 | |
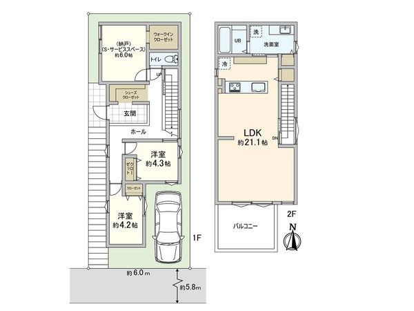
| 間取り | 2SLDK ※S・サービススペースは納戸です |
| 建物面積 | 96.93㎡(約29.32坪) |
| 土地面積 | 90.51㎡(約27.37坪) |
| 築年月 | 2025年10月築 |
予約制内覧会を開催します!
| 開催日 | 4月26日(日)11:00 ~ 16:00 |
|---|
■ここがおすすめ ○2025年10月建築 ○南向きにつき陽当たり良好 ○床下環境を守る気密パッキン ○耐震等級3 ○制震ダンパー設置 ○樹脂窓を採用し、高い断熱性能とデザインが実現 ■アクセス ○阪急神戸線「西宮北口」駅まで徒歩約18分(約1420m) ○JR東海道本線「西宮」駅まで徒歩約18分(約1440m)
| 所在地 | GoogleMaps |
| 価格 | 7,180万円 |
| 交通 | |
| その他費用 | - |
| 間取り | 2SLDK ※S・サービススペースは納戸です |
| 建物面積 | 96.93㎡(約29.32坪) |
| 土地面積 | 90.51㎡(約27.37坪) |
| 築年月 | 2025年10月築 |
| 建物構造 | 木造2階建 |
| 現況 | 空家 |
| 駐車場 | 有 |
| 土地権利 | 所有権 |
| 地目 | 宅地 |
| 接道状況 | 南側: 約 5.8m (公道) |
| 建ぺい率 | 60% |
| 容積率 | 200% |
| 用途地域 | 第一種住居地域 |
| 都市計画 | 市街化区域 |
| 備考 | - |
| 引渡時期 | 相談 |
| 取引態様 | 仲介 |
| 更新日 | 2026年04月26日 |
| 次回更新予定 | 2026年05月10日 |
| 物件番号 | FZABGA04 |
最新のAI技術を活用した相談サービスです。
お客様一人ひとりのニーズに合わせて最適な情報をご提供します。
リハウスAIチャットの詳しい説明はこちら
GoogleMaps
| スーパー | 関西スーパー広田店 約550m(徒歩7分) |
| 小学校 | 西宮市立広田小学校 約720m(徒歩9分) |
| 中学校 | 西宮市立平木中学校 約600m(徒歩8分) |
| その他利便施設1 | 西宮北口駅(阪急 神戸本線) 約1420m(徒歩18分) |
| その他利便施設2 | 西宮北口駅(阪急 今津線) 約1420m(徒歩18分) |
| その他利便施設3 | 西宮駅(JR西日本 東海道本線) 約1440m(徒歩18分) |
| その他利便施設4 | セブンイレブン西宮柳本町店 約160m(徒歩2分) |
| その他利便施設5 | ジョーシン西宮店 約360m(徒歩5分) |
0120-8631-37
0120-8631-37
物件の売却をご検討の方は、 はやめの査定依頼がおすすめです!
買い替えをご検討の方はこちら0120-8631-37

