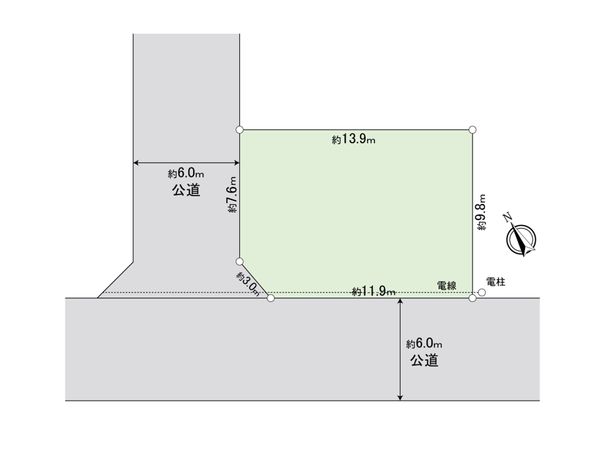
野田市花井1丁目 土地

掲載終了

申し訳ございません。
お探しの物件は、掲載が終了したか、
成約済みになった可能性があります。