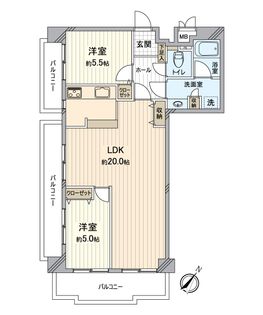
3LDK / 66.65㎡ / 5階
杁中スカイタウン
「杁中スカイタウン」は、名古屋市鶴舞線のいりなか駅から徒歩約2分の距離に位置するマンションです。総戸数は249戸となっており、日々の生活に便利な立地条件を備えています。 この物件は、駅近の利点を活かし、通勤や通学、さらには週末のお出かけにも気軽にアクセスできる点が魅力です。駅チカでありながらも、落ち着いた住環境を求める方に適した住まいと言えるでしょう。 「杁中スカイタウン」は、都心へのアクセスの良さと住環境の良さを兼ね備えたマンションとして、快適な生活をサポートします。



No Image
No Image
基本情報
| 所在地 | 愛知県名古屋市昭和区滝川町 GoogleMaps |
| 交通 | |
| 総戸数 | 249戸 |
| 分譲会社 | 日興不動産(株) |
| 周辺施設 | - |
| 築年月 | 1985年07月 築 |
| 階建 | 12階建 |
| 建物構造 | 鉄骨鉄筋コンクリート造 |
| 施工会社 | 鴻池組 |
交通情報の変化や、分譲会社の社名変更等により、現況(販売中物件)と異なる場合があります。
担当店舗
※募集期間:2025/2/1 ~ 2025/3/31
※回答人数:27,509名
※対象者:三井のリハウスで不動産売買を経験された方
三井のリハウスの無料査定
お客様一人一人の物件に合わせて、
不動産取引に精通したプロが売り出し価格・募集賃料をご提案いたします。
不動産無料査定をお考えの方
お客様からいただいた物件情報と周辺事例や成約取引事例等に基づき、価格をご提示いたします。
無料査定依頼杁中スカイタウン 周辺相場・購入検討者情報
名古屋市昭和区周辺での周辺相場(売り出し中物件情報)
「専有面積×価格」などの件数分布表で相場を把握いただけます。
名古屋市昭和区の中古マンション購入情報をチェック購入検討者情報
三井のリハウスにご依頼いただいている方のうち、名古屋市昭和区周辺のマンション購入検討者数をご希望価格帯別にご紹介します。
名古屋市昭和区周辺での購入検討者
494人
名古屋市昭和区周辺におけるマンションの購入検討者数をご希望価格帯別に表示しています。
取引実績
過去10年の取引実績件数を一覧で表示します
名古屋市昭和区周辺での取引実績
総取引件数
864件
マンション
553件
一戸建て・土地
311件
アイコンについて
近隣のマンションを探す
名古屋市昭和区の物件情報
近くのエリアから探す
他の駅から探す
名古屋市鶴舞線
名古屋市名城線
名古屋市鶴舞線
よくあるご質問
物件が売り出されたら、
メールでお知らせします!
こちらのマンションで別の間取りや別の階などの新しい物件が売り出されたら、いち早くメールでご連絡いたします。
この物件が出たら教えて!不動産無料査定
お客様一人一人の物件に合わせて、不動産取引に精通したプロが売り出し価格・募集賃料をご提案いたします。
無料査定依頼店舗へ問い合わせる
売り出し中物件が見つからない場合、異なる条件の物件をご希望の場合など、お気軽にお問い合わせください。
担当店舗へ問い合わせる







