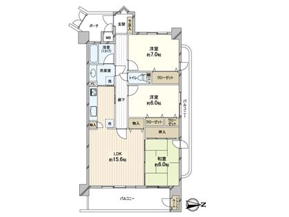
3LDK / 82.85㎡ / 3階
ネオグランデ夙川公園
「ネオグランデ夙川公園」は、東海道本線「さくら夙川」駅から徒歩約3分の距離に位置しており、日々の通勤や通学、さらにはお出かけにも便利な立地です。駅近の利点を活かし、時間を有効に使えることで、忙しい毎日を送る方々にとっても魅力的な住まいと言えるでしょう。 この物件は、アクセスの良さを重視する方に適した住環境を提供しています。駅チカでありながら、落ち着いた住宅街に位置しているため、都会の利便性と住環境の良さを兼ね備えています。 「ネオグランデ夙川公園」は、都心へのアクセスを重視しながらも、住みやすさを求める方々に適したマンションです。駅からの近さが生活をより便利にし、忙しい日々の中でも時間を有効に使える環境を提供します。





基本情報
| 所在地 | 兵庫県西宮市安井町 GoogleMaps |
| 交通 | |
| 総戸数 | 30戸 |
| 分譲会社 | 大和団地(株) |
| 周辺施設 | - |
| 築年月 | 1998年03月 築 |
| 階建 | 5階建 |
| 建物構造 | 鉄筋コンクリート造 |
| 施工会社 | (株)鍛冶田工務店 |
交通情報の変化や、分譲会社の社名変更等により、現況(販売中物件)と異なる場合があります。
担当店舗
※募集期間:2025/2/1 ~ 2025/3/31
※回答人数:27,509名
※対象者:三井のリハウスで不動産売買を経験された方
三井のリハウスの無料査定
お客様一人一人の物件に合わせて、
不動産取引に精通したプロが売り出し価格・募集賃料をご提案いたします。
不動産無料査定をお考えの方
お客様からいただいた物件情報と周辺事例や成約取引事例等に基づき、価格をご提示いたします。
無料査定依頼参考相場価格
ネオグランデ夙川公園
万円~
万円
物件の広さを選択してください
※物件の広さを選択いただくと、面積ごとの参考相場価格が確認できます。選択可能な面積は、実際のマンションの面積帯とは異なりますので、ご注意ください。
ネオグランデ夙川公園 周辺相場・購入検討者情報
西宮市周辺での周辺相場(売り出し中物件情報)
「専有面積×価格」などの件数分布表で相場を把握いただけます。
西宮市の中古マンション購入情報をチェック購入検討者情報
三井のリハウスにご依頼いただいている方のうち、西宮市周辺のマンション購入検討者数をご希望価格帯別にご紹介します。
西宮市周辺での購入検討者
479人
西宮市周辺におけるマンションの購入検討者数をご希望価格帯別に表示しています。
取引実績
過去10年の取引実績件数を一覧で表示します
西宮市周辺での取引実績
総取引件数
3,678件
マンション
2,108件
一戸建て・土地
1,570件
アイコンについて
近隣のマンションを探す
西宮市の物件情報
近くのエリアから探す
他の駅から探す
東海道本線(米原~神戸)
阪急神戸線
阪神本線
よくあるご質問
物件が売り出されたら、
メールでお知らせします!
こちらのマンションで別の間取りや別の階などの新しい物件が売り出されたら、いち早くメールでご連絡いたします。
この物件が出たら教えて!不動産無料査定
お客様一人一人の物件に合わせて、不動産取引に精通したプロが売り出し価格・募集賃料をご提案いたします。
無料査定依頼店舗へ問い合わせる
売り出し中物件が見つからない場合、異なる条件の物件をご希望の場合など、お気軽にお問い合わせください。
担当店舗へ問い合わせる







