札幌市白石区本通19丁目南
札幌市営東西線 南郷18丁目駅 徒歩6分





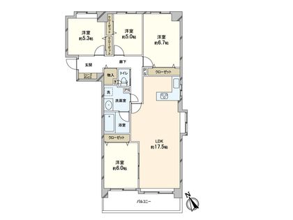
| 所在地 | 北海道札幌市白石区南郷通14丁目南 GoogleMaps |
| 交通 | 札幌市営東西線 南郷13丁目駅 徒歩4分 |
| 総戸数 | 38戸 |
| 分譲会社 | 住友不動産(株) |
| 周辺施設 | - |
| 築年月 | 1988年03月 築 |
| 階建 | 7階建 |
| 建物構造 | 鉄筋コンクリート造 |
| 施工会社 | 三井建設 |
営業時間
10:00~18:00
定休日
毎週火曜日・水曜日 ※5/1(金)~5/6(水) GW休業期間
お客様一人一人の物件に合わせて、
不動産取引に精通したプロが売り出し価格・募集賃料をご提案いたします。
不動産無料査定をお考えの方
お客様からいただいた物件情報と周辺事例や成約取引事例等に基づき、価格をご提示いたします。
無料査定依頼南郷シティハウス2 周辺相場・購入検討者情報
「専有面積×価格」などの件数分布表で相場を把握いただけます。
札幌市白石区の中古マンション購入情報をチェック三井のリハウスにご依頼いただいている方のうち、札幌市白石区周辺のマンション購入検討者数をご希望価格帯別にご紹介します。
札幌市白石区周辺におけるマンションの購入検討者数をご希望価格帯別に表示しています。
過去10年の取引実績件数を一覧で表示します
総取引件数
1,168件
マンション
557件
一戸建て・土地
611件
こちらのマンションで別の間取りや別の階などの新しい物件が売り出されたら、いち早くメールでご連絡いたします。
この物件が出たら教えて!お客様一人一人の物件に合わせて、不動産取引に精通したプロが売り出し価格・募集賃料をご提案いたします。
無料査定依頼売り出し中物件が見つからない場合、異なる条件の物件をご希望の場合など、お気軽にお問い合わせください。
担当店舗へ問い合わせる