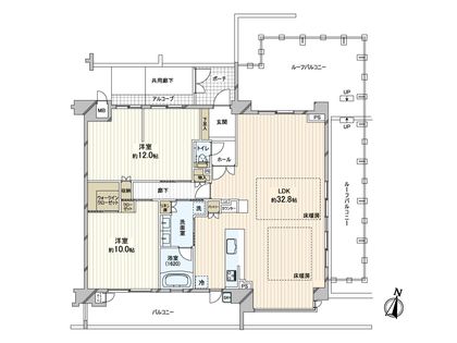
ユニハイムエクシア芦屋

「ユニハイムエクシア芦屋」は、阪神本線の打出駅に近接しており、日々の通勤やお出かけに便利な立地に位置しています。駅からのアクセスが良好なため、移動の際のストレスを軽減し、生活の利便性を高めています。 この物件は、駅チカであることから、鉄道利用者にとって魅力的な住環境を提供しています。駅周辺には、日常の買い物に便利な店舗や飲食店が点在し、生活必需品の調達が容易です。 「ユニハイムエクシア芦屋」は、都心へのアクセスが良好でありながら、落ち着いた住環境を求める方に適したマンションです。駅至近の利便性と、周辺環境の充実が、快適な生活をサポートします。

基本情報

所在地

兵庫県芦屋市楠町

GoogleMaps
交通

阪神本線 打出駅 徒歩10分

東海道本線(米原~神戸) 芦屋駅 徒歩15分

阪急神戸線 夙川駅 徒歩16分

総戸数33戸
分譲会社(株)ユニチカエステート
周辺施設 -
築年月2011年10月 築
階建地上5階 地下1階建
建物構造鉄筋コンクリート造
施工会社東海興業(株)
※上記情報は分譲時のパンフレットに掲載されていた情報です。
交通情報の変化や、分譲会社の社名変更等により、現況(販売中物件)と異なる場合があります。

担当店舗

※本口コミは、三井のリハウスがウェブアンケートにて募集した内容を掲載しております。
※募集期間:2025/2/1 ~ 2025/3/31
※回答人数:27,509名
※対象者:三井のリハウスで不動産売買を経験された方

三井のリハウスの無料査定

お客様一人一人の物件に合わせて、
不動産取引に精通したプロが売り出し価格・募集賃料をご提案いたします。

不動産無料査定をお考えの方

お客様からいただいた物件情報と周辺事例や成約取引事例等に基づき、価格をご提示いたします。

無料査定依頼
リハウスAI査定

参考相場価格

ユニハイムエクシア芦屋

万円~
万円

対象マンションの売出し事例や成約事例などに基づき算出した参考価格であり、実際の査定価格とは異なります。参考相場価格算出にあたり、間取り・階数・方位などは考慮されておりません。
町域の相場
芦屋市楠町
万円~万円

物件の広さを選択してください

※物件の広さを選択いただくと、面積ごとの参考相場価格が確認できます。選択可能な面積は、実際のマンションの面積帯とは異なりますので、ご注意ください。

※参考相場価格については「不動産の鑑定評価に関する法律」に基づく不動産鑑定評価に代わるものではなく、また、売却価格を保証するものではありません。当社保有の物件住戸情報にもとづいて算出しており、物件住戸情報が事実と異なる場合、実際の成約価格と異なる場合があります。

ユニハイムエクシア芦屋 周辺相場・購入検討者情報

芦屋市周辺での周辺相場(売り出し中物件情報)

「専有面積×価格」などの件数分布表で相場を把握いただけます。

芦屋市の中古マンション購入情報をチェック

購入検討者情報

三井のリハウスにご依頼いただいている方のうち、芦屋市周辺のマンション購入検討者数をご希望価格帯別にご紹介します。

芦屋市周辺での購入検討者
318人

芦屋市周辺におけるマンションの購入検討者数をご希望価格帯別に表示しています。

※直近1年以内に芦屋市および芦屋市内の駅周辺で購入のご依頼をいただいたお客様の累計を表示しています。

取引実績

過去10年の取引実績件数を一覧で表示します

芦屋市周辺での取引実績

総取引件数

1,696

マンション

1,289

一戸建て・土地

407

※三井のリハウスでの取引実績(2016年5月〜2026年4月)件数を表示しています。

アイコンについて

NEW

一週間以内に登録

新価格

価格の変更あり

新賃料

一週間以内に賃料・管理費の変更あり

オープンハウス

オープンハウス開催中(予定)

事前予約制内覧会

事前予約制内覧会を開催中(予定)

パノラマ画像

パノラマ画像掲載

近隣のマンションを探す

芦屋コンチェルト

芦屋コンチェルト

芦屋市大原町

東海道本線(米原~神戸) 芦屋駅 徒歩5分

外観

ザ・パークハウス芦屋川

芦屋市東芦屋町

阪急神戸線 芦屋川駅 徒歩2分

外観

パーク・ハイム芦屋翠ケ丘

芦屋市翠ケ丘町

東海道本線(米原~神戸) 芦屋駅 徒歩16分

デリードヴィンテージ芦屋川山手

デリードヴィンテージ芦屋川山手

芦屋市山手町

阪急神戸線 芦屋川駅 徒歩9分

アーバンビュー芦屋山手

アーバンビュー芦屋山手

芦屋市山手町

阪急神戸線 芦屋川駅 徒歩15分

ローズハイツ芦屋

ローズハイツ芦屋

芦屋市東山町

東海道本線(米原~神戸) 芦屋駅 徒歩8分

ラフィーヌ芦屋

ラフィーヌ芦屋

芦屋市東芦屋町

東海道本線(米原~神戸) 芦屋駅 徒歩11分

外観

芦屋グランドハイツ

芦屋市山手町

阪急神戸線 芦屋川駅 徒歩10分

近くのエリアから探す

他の駅から探す

よくあるご質問

物件が売り出されたら、
メールでお知らせします!

こちらのマンションで別の間取りや別の階などの新しい物件が売り出されたら、いち早くメールでご連絡いたします。

この物件が出たら教えて!

不動産無料査定

お客様一人一人の物件に合わせて、不動産取引に精通したプロが売り出し価格・募集賃料をご提案いたします。

無料査定依頼

店舗へ問い合わせる

売り出し中物件が見つからない場合、異なる条件の物件をご希望の場合など、お気軽にお問い合わせください。

担当店舗へ問い合わせる