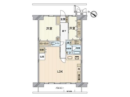
3LDK / 72.8㎡ / 3階
稲毛長沼パークハウス
「稲毛長沼パークハウス」は、総戸数116戸を誇るマンションで、中央・総武緩行線の稲毛駅からバスで約18分、バス停「ワンズモール」から徒歩約6分の場所に位置しています。この物件は、自然に囲まれた落ち着いた環境での生活を望む方に適しており、中心街の喧騒から離れた穏やかな日々を送ることができます。 周辺にはスーパーマーケットや病院が徒歩10分以内にあり、日々の買い物や健康管理に便利です。また、コンビニエンスストアや大型ショッピングモールなども近く、生活の利便性が高い立地です。子育て世帯にも安心の環境が整っています。 自然豊かな住環境と日常生活の利便性を兼ね備えた「稲毛長沼パークハウス」は、ゆったりとした時間を過ごしたい方に適した住まいと言えます。





基本情報
| 所在地 | 千葉県千葉市稲毛区長沼町 GoogleMaps |
| 交通 | 中央・総武緩行線 稲毛駅 バス24分 ワンズモール 停歩6分 |
| 総戸数 | 116戸 |
| 分譲会社 | 三菱地所(株) |
| 周辺施設 | - |
| 築年月 | 1996年07月 築 |
| 階建 | 11階建 |
| 建物構造 | 鉄筋コンクリート造 |
| 施工会社 | 東急建設(株) |
交通情報の変化や、分譲会社の社名変更等により、現況(販売中物件)と異なる場合があります。
担当店舗
※募集期間:2025/2/1 ~ 2025/3/31
※回答人数:27,509名
※対象者:三井のリハウスで不動産売買を経験された方
三井のリハウスの無料査定
お客様一人一人の物件に合わせて、
不動産取引に精通したプロが売り出し価格・募集賃料をご提案いたします。
不動産無料査定をお考えの方
お客様からいただいた物件情報と周辺事例や成約取引事例等に基づき、価格をご提示いたします。
無料査定依頼参考相場価格
稲毛長沼パークハウス
万円~
万円
物件の広さを選択してください
※物件の広さを選択いただくと、面積ごとの参考相場価格が確認できます。選択可能な面積は、実際のマンションの面積帯とは異なりますので、ご注意ください。
稲毛長沼パークハウス 周辺相場・購入検討者情報
千葉市稲毛区周辺での周辺相場(売り出し中物件情報)
「専有面積×価格」などの件数分布表で相場を把握いただけます。
千葉市稲毛区の中古マンション購入情報をチェック購入検討者情報
三井のリハウスにご依頼いただいている方のうち、千葉市稲毛区周辺のマンション購入検討者数をご希望価格帯別にご紹介します。
千葉市稲毛区周辺での購入検討者
581人
千葉市稲毛区周辺におけるマンションの購入検討者数をご希望価格帯別に表示しています。
取引実績
過去10年の取引実績件数を一覧で表示します
千葉市稲毛区周辺での取引実績
総取引件数
1,471件
マンション
817件
一戸建て・土地
654件
アイコンについて
近隣のマンションを探す
千葉市稲毛区の物件情報
近くのエリアから探す
他の駅から探す
中央・総武緩行線
よくあるご質問
物件が売り出されたら、
メールでお知らせします!
こちらのマンションで別の間取りや別の階などの新しい物件が売り出されたら、いち早くメールでご連絡いたします。
この物件が出たら教えて!不動産無料査定
お客様一人一人の物件に合わせて、不動産取引に精通したプロが売り出し価格・募集賃料をご提案いたします。
無料査定依頼店舗へ問い合わせる
売り出し中物件が見つからない場合、異なる条件の物件をご希望の場合など、お気軽にお問い合わせください。
担当店舗へ問い合わせる







