バウス西葛西清新町
3LDK/65.93㎡
23万円
管理費等
10,000円
敷金/礼金/保証金
1ヶ月/1ヶ月/-



物件情報
おすすめポイント
取扱店舗
| 種目 | 分譲賃貸マンション |
| 所在地 | 東京都江戸川区清新町2丁目 GoogleMaps |
| 交通 | 東京メトロ東西線 西葛西駅 徒歩16分 |
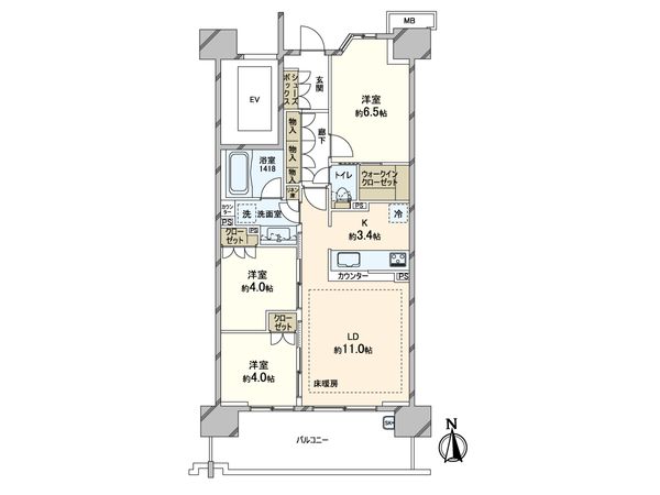
| 間取り | 3LDK |
| 専有面積 | 65.93㎡ |
| 築年月 | 2020年04月 築 |
| 階数 / 階建 | 9階 / 地上11階建 |
| 向き | 南 |
この物件情報を共有する
おすすめポイント
位置
- 2階以上
- 南向き
セキュリティ
- オートロック
- 日勤管理
- TVモニタ付インターホン
設備(建物)
- エレベーター
- 宅配ボックス
- 駐輪場
- バイク置場
- バルコニー
設備・仕様(室内)
- LDK12畳以上
- ガス給湯器
- 洗面所独立
- 床暖房
- フローリング
- 室内洗濯機置場
- シューズボックス
- BS視聴可
- CS視聴可
- ケーブルテレビ
- インターネット対応
- エアコン
- 洗面化粧台
キッチン
- システムキッチン
- ガスコンロ
- 食器洗浄乾燥機
- 浄水器
バス・トイレ
- 浴室
- 浴室トイレ別
- 追焚き可
- シャワー
- 浴室乾燥機
- トイレ
- 温水洗浄便座
条件
- 楽器可・相談
その他
- 分譲賃貸
おすすめポイント
■バルコニーから富士山と花火を一望■9階南向き3LDK ■CATV別途契約、費用負担有■浄水器カートリッジ交換費用別途負担有■鍵シリンダー交換費用別途負担有(任意)■安心入居サポート月770円
物件情報
| 所在地 | 東京都江戸川区清新町2丁目 GoogleMaps |
| 賃料 | 23万円 |
| 管理費/共益費 | 10,000円 |
| 敷金/礼金/保証金 | 1ヶ月/1ヶ月/- |
| 更新料 | - |
| 償却 | - |
| 交通 | 東京メトロ東西線 西葛西駅 徒歩16分 |
| 間取り | 3LDK |
| 専有面積 | 65.93㎡ |
| 築年月 | 2020年04月 築 |
| 階数 / 階建 | 9階 / 地上11階建 |
| 向き | 南 |
| 契約形態 | 定期建物賃貸借 |
| 契約期間 | 6年0ヶ月 |
| 駐車場 | 空無 |
| 建物構造 | 鉄筋コンクリート造 |
| 現況 | 空家 |
| 入居可能時期 | 相談 |
| 損害保険等 | 12,700円(1年間) |
| 特記事項 | 大手法人契約時、普通賃貸借契約へ変更相談可。 |
| 取引形態 | 仲介 |
| 更新日 | 2025年12月08日 |
| 次回更新日 | 2025年12月22日 |
その他費用・備考
■退去時清掃費用借主負担特約:87,027円(税込)■禁煙住戸■保証会社利用必須(保証料:初回賃料等の50%、賃料収納月以降1,000円/月)■ネット基本使用料無料(棟内開通済回線J:COMに限る)
この物件のことを
AIに聞いてみませんか?
最新のAI技術を活用した相談サービスです。
お客様一人ひとりのニーズに合わせて最適な情報をご提供します。
リハウスAIチャットの詳しい説明はこちら

取扱店舗
三井のリハウス 錦糸町センター
- 営業時間10:00~18:00
- 定休日毎週火曜日・水曜日※12/27(土)~1/3(土)年末年始休業期間
0120-926-682
この物件を見学する
この物件についてお問い合わせ
物件・住環境の詳しい情報など、ささいなことでもお気軽にお問い合わせください。三井のリハウス 錦糸町センター
- 営業時間10:00~18:00
- 定休日毎週火曜日・水曜日※12/27(土)~1/3(土)年末年始休業期間
0120-926-682
見学予約
お問い合わせ
0120-926-682
- 営業時間 10:00~18:00
- 定休日 毎週火曜日・水曜日※12/27(土)~1/3(土)年末年始休業期間